NEW

PMO銀座Ⅱ 4階B

屋上ラウンジ・屋上喫煙室など充実の共用部。銀座エリアに誕生、プレミアム・ミッドサイズ・オフィス。
最終情報更新日:2026/03/04
ビルコード: 1310203787
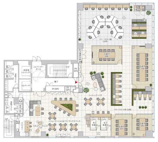
PMO銀座Ⅱ 4階B 平面図
建物詳細

PMO銀座Ⅱ(東京都中央区銀座8丁目17-1)は、2023年10月竣工の地上9階建ての賃貸オフィスビルです。都営大江戸線「築地市場」駅A3出口徒歩4分をはじめ、「新橋」「東銀座」「銀座」駅を含む6駅へのアプローチが可能な交通利便性の高い好立地。銀座の街の新たな風景に加わる品格ある洗練されたデザインのファサードはビジネスにふさわしい力強さを兼ね備えています。天井高3.5mのエントランスホールは、オリジナルのアロマが香り、洗練された格調高い空間となっています。

基準階貸室面積は約160坪、天井高は約2.8mのコの字型の無柱空間。執務エリアへの入口は2箇所あり導線を分けたい企業様にもおすすめです。オープン型のパントリーが採用されており、ラウンジ空間などの構築にもおすすめです。室内は大型窓から豊かな外光を取り入れることができ、明るく開放的なオフィスとなっています。グリッドシステム天井でレイアウトも自在。空調は9分割のゾーンの個別空調方式で快適性と省エネを両立します。

多段階セキュリティ、新耐震基準の1.5倍相当の耐震性能や異系統二回線受電方式などのBCP対応、充実したアメニティなど、ワンランク上のスペックを標準装備。さらには環境認証取得など環境性能に優れた建物となっています。

最新の空室状況や賃料・賃貸条件など、お気軽にお問合せ下さい。

賃貸条件

所在階 4階 内装付
用途 事務所
面積 75.7坪 / 250.24m²
賃料 相談
共益費 相談
坪単価 -
預託金 相談
入居時期 2026年8月下旬
その他費用 償却: なし
天井高 2,800mm
トイレ 男女別
床仕様 OAフロア
その他 フルセットアップ区画

物件概要

所在地 東京都中央区銀座8丁目17-1
交通
  • 都営大江戸線 築地市場駅 4分
  • 都営大江戸線 汐留駅 5分
  • 東京メトロ日比谷線 東銀座駅 6分
  • 東京メトロ丸ノ内線 銀座駅 7分
  • JR山手線 新橋駅 9分
規模 地上9階建て
竣工 2023年10月
耐震基準 新耐震基準
構造 コンクリート充填鋼管構造(CFT造)
基準階坪数 160.73坪
基準階天井高 2,800mm
延床面積 5,517.46㎡

物件詳細・設備

エレベーター 2基
駐車場 あり 17台(小型車 11台・普通車 6台(内ハイルーフ3台))・荷捌き 1台・身障者用 1台
情報通信設備 光ケーブル(MDFまで引込み)
空調 個別空調
セキュリティ 機械警備、1階セキュリティゲートあり
建物設備 屋上スカイラウンジ、屋上喫煙室

PMO銀座Ⅱの空室一覧

↓ 募集区画クリックで詳細情報をご覧いただけます

募集区画 面積 用途 賃料+共益費 坪単価(共益費込) 入居時期 平面図 お気に入り
NEW 4階B 内装付 75.7坪 事務所 相談 - 2026年8月下旬

近隣の条件が近い物件

東京都中央区銀座8丁目1番9、28(地番) 銀座天國ビル

地上13階 / 地下1階

74.34坪

東京メトロ銀座線 銀座駅 6分

東京都中央区銀座5丁目15-8

地上14階 / 地下2階

74.41坪 〜 78.42坪

東京メトロ日比谷線 東銀座駅 2分

東京都中央区銀座4丁目10-3

地上10階 / 地下1階

75.81坪

都営浅草線 東銀座駅 1分

東京都中央区築地1丁目10以下未定

地上10階建て

74.98坪

東京メトロ日比谷線 築地駅 2分

東京都中央区築地6丁目25-10

地上11階 / 地下1階

75.19坪

東京メトロ日比谷線 築地駅 5分

東京都港区新橋4丁目24-8

地上9階 / 地下2階

75.3坪

JR山手線 新橋駅 4分

東京都中央区築地3丁目5-10

地上7階 / 地下3階

76.47坪

東京メトロ日比谷線 築地駅 2分

東京都中央区銀座1丁目6-10

地上7階 / 地下1階

75.81坪

東京メトロ有楽町線 銀座一丁目駅 1分

東京都中央区銀座5丁目15-18

地上9階 / 地下1階

71.41坪

東京メトロ日比谷線 東銀座駅 1分

東京都港区新橋6丁目9-4

地上8階 / 地下2階

77.19坪

JR山手線 新橋駅 5分

東京都港区新橋6丁目13-10

地上9階建て

75.16坪

都営三田線 御成門駅 3分

東京都中央区銀座5丁目9-17

地上6階 / 地下1階

70.86坪

東京メトロ丸ノ内線 銀座駅 1分

東京都中央区銀座2丁目2-2

地上12階 / 地下1階

77.83坪

東京メトロ有楽町線 銀座一丁目駅 1分

東京都中央区銀座8丁目9-15

地上12階 / 地下1階

82.98坪

JR山手線 新橋駅 4分

東京都中央区築地5丁目6-10

地上17階 / 地下2階

70.43坪

都営大江戸線 築地市場駅 4分

※表示金額はすべて「税抜き表示」となっています。 / ※間取図は現況を優先させていただきます。 / ※駐車場は建物設備としての有無のため、有の場合でも賃貸条件としての空きを保証するものではありません。 / ※掲載情報の誤りや変更、未掲載情報の掲載依頼がございましたら、お手数ですが お問い合わせフォーム よりご連絡ください。

掲載物件数:2,397件  4,313区画

お気に入りに追加