藤久ビル西2号館 4階

最終情報更新日:2026/02/06
ビルコード:1311600388
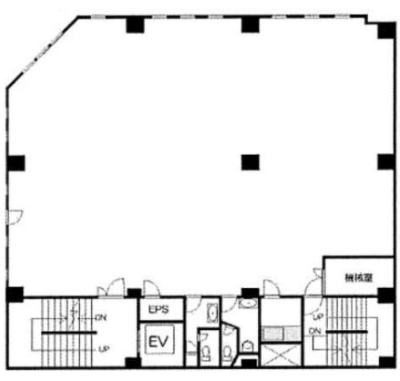
藤久ビル西2号館 4階 平面図

賃貸条件

所在階4階
用途事務所、店舗
面積76.42坪 / 252.62m²
賃料相談
共益費相談
坪単価-
預託金10ヶ月
入居時期即入居
その他費用償却: なし
礼金: なし
更新料・再契約料: なし
トイレ男女別
その他金融機関・旅行会社等以外の店舗及び教室不可

物件概要

所在地東京都豊島区西池袋3丁目28-1
交通
  • JR山手線 池袋駅 4分
規模地上8階 / 地下1階
竣工1971年11月
構造鉄筋コンクリート(RC造)
基準階坪数78.02坪

物件詳細・設備

エレベーター1基
駐車場なし
空調個別空調

藤久ビル西2号館の空室一覧

↓ 募集区画クリックで詳細情報をご覧いただけます

募集区画面積用途賃料+共益費坪単価(共益費込)入居時期平面図お気に入り
4階76.42坪事務所、店舗相談-即入居

※表⽰⾦額は、敷⾦・保証⾦などの預かり⾦を除き、別途消費税がかかります。 / ※間取図は現況を優先させていただきます。 / ※駐車場は建物設備としての有無のため、有の場合でも賃貸条件としての空きを保証するものではありません。 / ※掲載情報の誤りや変更、未掲載情報の掲載依頼がございましたら、お手数ですが お問い合わせフォームよりご連絡ください。

近隣の条件が近い物件

東京都豊島区東池袋3丁目1-1

地上60階 / 地下4階

78.65坪

東京メトロ有楽町線 東池袋駅 3分

東京都豊島区南池袋2丁目17-7

地上13階建て

69.5坪 〜 71.88坪

JR山手線 池袋駅 5分

東京都豊島区東池袋3丁目4-3

地上14階 / 地下1階

71.82坪

JR山手線 池袋駅 6分

東京都豊島区東池袋5丁目44-15

地上7階 / 地下1階

76.14坪

JR山手線 大塚駅 5分

東京都文京区大塚5丁目3-13

地上8階 / 地下2階

76.83坪

東京メトロ丸ノ内線 新大塚駅 5分

東京都豊島区南池袋2丁目27-8

地上9階 / 地下1階

86.4坪

JR山手線 池袋駅 2分

東京都豊島区西池袋5丁目13-13

地上15階 / 地下2階

64.29坪

東京メトロ有楽町線 要町駅 5分

東京都豊島区東池袋1丁目1-4

地上10階 / 地下1階

64.56坪

東京メトロ丸ノ内線 池袋駅 2分

東京都豊島区南池袋1丁目26-2

地上6階 / 地下1階

65.0坪

JR山手線 池袋駅 2分

東京都板橋区中丸町11-8

地上5階 / 地下1階

85.2坪

東京メトロ有楽町線 要町駅 8分

東京都豊島区南池袋2丁目49-4

地上7階 / 地下1階

86.5坪

JR山手線 池袋駅 8分

東京都豊島区北大塚1丁目13-17

地上5階 / 地下1階

72.7坪

JR山手線 大塚駅 4分

東京都豊島区池袋2丁目50-9

地上8階 / 地下2階

63.15坪

JR山手線 池袋駅 5分

東京都文京区音羽2丁目10-2

地上9階 / 地下1階

80.42坪

東京メトロ有楽町線 護国寺駅 2分

掲載物件数:2,372件  4,319区画

お気に入りに追加