ENetial神保町(旧:(仮称)千代田区神田神保町ビル計画) 5階

最終情報更新日:2026/01/22
ビルコード:1310103196
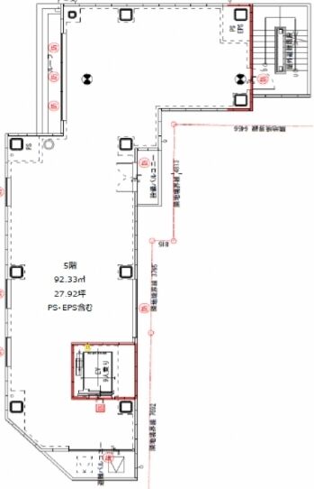
ENetial神保町(旧:(仮称)千代田区神田神保町ビル計画) 5階 平面図

賃貸条件

所在階5階
用途事務所、店舗
面積27.92坪 / 92.29m²
賃料630,000円
共益費賃料に含む
坪単価22,564円/坪(共益費込)
預託金6ヶ月
入居時期即入居
その他費用償却: なし
礼金: 1ヶ月
更新料・再契約料: 1ヶ月

物件概要

所在地東京都千代田区神田神保町1丁目34-1
交通
  • 東京メトロ半蔵門線 神保町駅 3分
規模地上6階 / 地下1階
竣工2023年9月
耐震基準新耐震基準
構造鉄骨(S造)

物件詳細・設備

エレベーター1基

ENetial神保町(旧:(仮称)千代田区神田神保町ビル計画)の空室一覧

↓ 募集区画クリックで詳細情報をご覧いただけます

募集区画面積用途賃料+共益費坪単価(共益費込)入居時期平面図お気に入り
5階27.92坪事務所、店舗630,000円22,564円/坪即入居
4階29.38坪事務所、店舗650,000円22,124円/坪即入居
3階29.38坪事務所、店舗650,000円22,124円/坪即入居
1階27.35坪事務所、店舗800,000円29,250円/坪即入居
地下1階28.93坪事務所、店舗650,000円22,468円/坪即入居

※表⽰⾦額は、敷⾦・保証⾦などの預かり⾦を除き、別途消費税がかかります。 / ※間取図は現況を優先させていただきます。 / ※駐車場は建物設備としての有無のため、有の場合でも賃貸条件としての空きを保証するものではありません。 / ※掲載情報の誤りや変更、未掲載情報の掲載依頼がございましたら、お手数ですが お問い合わせフォームよりご連絡ください。

近隣の条件が近い物件

東京都千代田区神田神保町1丁目12

地上10階 / 地下1階

27.77坪

東京メトロ半蔵門線 神保町駅 1分

東京都千代田区神田小川町3丁目6-6

地上8階 / 地下1階

30.0坪

都営新宿線 小川町駅 5分

東京都千代田区神田三崎町3丁目3-12

地上8階建て

26.81坪

JR中央・総武線 水道橋駅 3分

東京都千代田区神田錦町2丁目7-6

地上6階建て

27.83坪

東京メトロ東西線 竹橋駅 5分

東京都千代田区神田神保町2丁目17

地上10階建て

23.7坪

東京メトロ半蔵門線 神保町駅 1分

東京都千代田区神田鍛冶町3丁目7

地上10階 / 地下1階

27.07坪

JR山手線 神田駅 2分

東京都千代田区神田錦町3丁目15

地上7階 / 地下1階

24.3坪

東京メトロ東西線 竹橋駅 3分

東京都千代田区神田錦町3丁目13-7

地上9階 / 地下1階

31.72坪

東京メトロ東西線 竹橋駅 3分

東京都千代田区内神田1丁目31-11(地番)

地上26階 / 地下3階

34.8坪

東京メトロ丸ノ内線 大手町駅 3分

東京都千代田区神田神保町2丁目5-11

地上8階 / 地下1階

25.05坪

東京メトロ半蔵門線 神保町駅 1分

東京都千代田区神田駿河台2丁目3-16

地上7階建て

34.0坪

JR中央・総武線 御茶ノ水駅 5分

東京都千代田区神田須田町2丁目19-11

地上12階建て

30.06坪

都営新宿線 岩本町駅 3分

東京都千代田区九段南3丁目8-11

地上11階 / 地下1階

28.52坪

都営新宿線 市ケ谷駅 5分

東京都台東区上野3丁目7-5

地上8階建て

28.38坪

東京メトロ銀座線 末広町駅 3分

東京都千代田区神田佐久間河岸51

地上8階建て

27.88坪

東京メトロ日比谷線 秋葉原駅 1分

東京都千代田区大手町1丁目6-1

地上9階 / 地下3階

29.97坪 〜 30.02坪

東京メトロ丸ノ内線 大手町駅 1分

東京都千代田区飯田橋3丁目4-6

地上9階 / 地下1階

24.35坪

JR中央・総武線 飯田橋駅 4分

東京都千代田区富士見1丁目7-12

地上7階建て

31.28坪

JR中央・総武線 飯田橋駅 3分

掲載物件数:2,374件  4,320区画

お気に入りに追加