ENetial神保町(旧:(仮称)千代田区神田神保町ビル計画) 3階

最終情報更新日:2026/01/22
ビルコード:1310103196
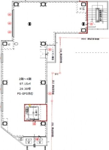
ENetial神保町(旧:(仮称)千代田区神田神保町ビル計画) 3階 平面図

賃貸条件

所在階3階
用途事務所、店舗
面積29.38坪 / 97.12m²
賃料650,000円
共益費賃料に含む
坪単価22,124円/坪(共益費込)
預託金6ヶ月
入居時期即入居
その他費用償却: なし
礼金: 1ヶ月
更新料・再契約料: 1ヶ月

物件概要

所在地東京都千代田区神田神保町1丁目34-1
交通
  • 東京メトロ半蔵門線 神保町駅 3分
規模地上6階 / 地下1階
竣工2023年9月
耐震基準新耐震基準
構造鉄骨(S造)

物件詳細・設備

エレベーター1基

ENetial神保町(旧:(仮称)千代田区神田神保町ビル計画)の空室一覧

↓ 募集区画クリックで詳細情報をご覧いただけます

募集区画面積用途賃料+共益費坪単価(共益費込)入居時期平面図お気に入り
5階27.92坪事務所、店舗630,000円22,564円/坪即入居
4階29.38坪事務所、店舗650,000円22,124円/坪即入居
3階29.38坪事務所、店舗650,000円22,124円/坪即入居
1階27.35坪事務所、店舗800,000円29,250円/坪即入居
地下1階28.93坪事務所、店舗650,000円22,468円/坪即入居

※表⽰⾦額は、敷⾦・保証⾦などの預かり⾦を除き、別途消費税がかかります。 / ※間取図は現況を優先させていただきます。 / ※駐車場は建物設備としての有無のため、有の場合でも賃貸条件としての空きを保証するものではありません。 / ※掲載情報の誤りや変更、未掲載情報の掲載依頼がございましたら、お手数ですが お問い合わせフォームよりご連絡ください。

近隣の条件が近い物件

東京都千代田区神田神保町1丁目12

地上10階 / 地下1階

27.77坪

東京メトロ半蔵門線 神保町駅 1分

東京都千代田区神田小川町3丁目6-6

地上8階 / 地下1階

30.0坪

都営新宿線 小川町駅 5分

東京都千代田区神田錦町2丁目7-6

地上6階建て

27.83坪

東京メトロ東西線 竹橋駅 5分

東京都千代田区神田錦町3丁目13-7

地上9階 / 地下1階

31.72坪

東京メトロ東西線 竹橋駅 3分

東京都千代田区内神田1丁目31-11(地番)

地上26階 / 地下3階

34.8坪

東京メトロ丸ノ内線 大手町駅 3分

東京都千代田区神田駿河台2丁目3-16

地上7階建て

34.0坪

JR中央・総武線 御茶ノ水駅 5分

東京都千代田区神田神保町2丁目17

地上10階建て

23.7坪

東京メトロ半蔵門線 神保町駅 1分

東京都千代田区神田須田町2丁目19-11

地上12階建て

30.06坪

都営新宿線 岩本町駅 3分

東京都千代田区富士見1丁目7-12

地上7階建て

31.28坪 〜 31.98坪

JR中央・総武線 飯田橋駅 3分

東京都千代田区大手町1丁目6-1

地上9階 / 地下3階

29.97坪 〜 30.75坪

東京メトロ丸ノ内線 大手町駅 1分

東京都千代田区神田神保町2丁目4

地上8階 / 地下1階

37.11坪

東京メトロ半蔵門線 神保町駅 1分

東京都文京区本郷5丁目23-13

地上12階建て

30.92坪

都営大江戸線 本郷三丁目駅 4分

東京都千代田区神田鍛冶町3丁目7

地上10階 / 地下1階

27.07坪

JR山手線 神田駅 2分

東京都千代田区内神田3丁目22-9

地上5階 / 地下1階

31.7坪

JR山手線 神田駅 1分

東京都千代田区神田錦町3丁目15

地上7階 / 地下1階

24.3坪

東京メトロ東西線 竹橋駅 3分

掲載物件数:2,375件  4,324区画

お気に入りに追加