NEW

南青山吉岡ビル 1階

最終情報更新日:2026/03/13
ビルコード: 1310304050
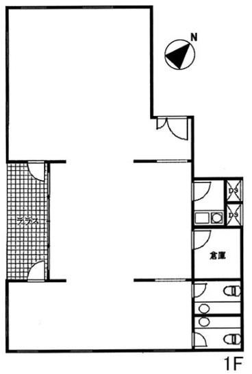
南青山吉岡ビル 1階 平面図

賃貸条件

所在階 1階
用途 事務所
面積 40.67坪 / 134.44m²
賃料 955,745円
共益費 61,005円
坪単価 25,000円/坪 (共益費込)
預託金 10ヶ月
入居時期 相談
その他費用 礼金: 1ヶ月
更新料・再契約料: 1ヶ月
トイレ 男女別

物件概要

所在地 東京都港区南青山5丁目15-14
交通
  • 東京メトロ銀座線 表参道駅 6分
規模 地上3階 / 地下1階
竣工 1990年
耐震基準 新耐震基準
構造 鉄筋コンクリート(RC造)
基準階坪数 40.67坪

物件詳細・設備

エレベーター 1基
情報通信設備 光ファイバー

南青山吉岡ビルの空室一覧

↓ 募集区画クリックで詳細情報をご覧いただけます

募集区画 面積 用途 賃料+共益費 坪単価(共益費込) 入居時期 平面図 お気に入り
NEW 1階 40.67坪 事務所 1,016,750円 25,000円/坪 相談

近隣の条件が近い物件

東京都渋谷区渋谷2丁目6-6

地上5階建て

42.75坪

東京メトロ銀座線 表参道駅 7分

東京都渋谷区渋谷2丁目16-5

地上8階建て

40.22坪

JR山手線 渋谷駅 3分

東京都渋谷区渋谷3丁目1-6

地上9階 / 地下1階

42.88坪

JR山手線 渋谷駅 6分

東京都渋谷区神宮前5丁目50-8

地上4階 / 地下2階

43.85坪 〜 46.78坪

東京メトロ千代田線 表参道駅 3分

東京都渋谷区渋谷1丁目20-18

地上5階 / 地下1階

39.02坪

JR山手線 渋谷駅 5分

東京都渋谷区東1丁目26-30

地上9階建て

43.67坪

JR山手線 渋谷駅 4分

東京都渋谷区東3丁目11-10

地上9階 / 地下2階

39.44坪

JR山手線 恵比寿駅 4分

東京都渋谷区神南1丁目20-9

地上8階建て

39.22坪

JR山手線 渋谷駅 4分

東京都渋谷区渋谷1丁目14-16

地上9階 / 地下1階

37.56坪

JR山手線 渋谷駅 2分

東京都港区北青山1丁目4-5

地上12階建て

39.45坪

都営大江戸線 青山一丁目駅 3分

東京都渋谷区神宮前4丁目4-13

地上4階 / 地下1階

45.37坪

東京メトロ千代田線 表参道駅 5分

東京都渋谷区渋谷2丁目9-8

地上11階建て

34.55坪 〜 34.55坪

JR山手線 渋谷駅 6分

東京都港区北青山3丁目5-15

地上10階 / 地下1階

46.48坪

東京メトロ千代田線 表参道駅 3分

東京都渋谷区恵比寿西2丁目4-5

地上9階 / 地下1階

43.78坪

JR山手線 恵比寿駅 6分

東京都港区六本木6丁目17-1

地上7階建て

40.08坪

都営大江戸線 麻布十番駅 4分

※表示金額はすべて「税抜き表示」となっています。 / ※間取図は現況を優先させていただきます。 / ※駐車場は建物設備としての有無のため、有の場合でも賃貸条件としての空きを保証するものではありません。 / ※掲載情報の誤りや変更、未掲載情報の掲載依頼がございましたら、お手数ですが お問い合わせフォーム よりご連絡ください。

掲載物件数:2,360件  4,284区画

お気に入りに追加