安井平河町ビル 1階~9階(募集終了)

大規模リニューアル予定一棟貸・賃貸期間中のビル名決定権付のオフィスビル
最終情報更新日:2024/03/11
ビルコード: 1310103101

賃貸条件

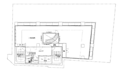
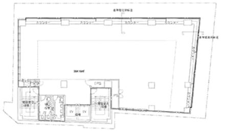
所在階 1階
面積 836.44坪 / 2765.09m²

※募集終了区画です。最新の空室状況は こちら からご確認下さい。

物件概要

所在地 東京都千代田区平河町1丁目3-14
交通
  • 東京メトロ半蔵門線 半蔵門駅 2分
  • 東京メトロ有楽町線 麹町駅 4分
  • 東京メトロ南北線 永田町駅 7分
規模 地上9階 / 地下1階
竣工 1990年2月
耐震基準 新耐震基準
構造 鉄骨鉄筋コンクリート(SRC造)
基準階坪数 110.0坪
基準階天井高 2,500mm

物件詳細・設備

エレベーター 2基
駐車場 あり 12台(機械式)
空調 個別空調
リニューアル履歴 2024年1~5月 大規模リノベーション工事実施予定

安井平河町ビルの空室一覧

現在、テナント募集区画の掲載はありません。
非公開の空室情報や、類似物件をご希望の方は「 空室お知らせ希望 」からお気軽にお問合せください。

近隣の条件が近い物件

東京都港区赤坂2丁目1433番地1

地上41階 / 地下4階

817.0坪

東京メトロ千代田線 赤坂駅 1分

※表示金額はすべて「税抜き表示」となっています。 / ※間取図は現況を優先させていただきます。 / ※駐車場は建物設備としての有無のため、有の場合でも賃貸条件としての空きを保証するものではありません。 / ※掲載情報の誤りや変更、未掲載情報の掲載依頼がございましたら、お手数ですが お問い合わせフォーム よりご連絡ください。

掲載物件数:2,337件  4,204区画