NEW

青山SIビル 4階

最終情報更新日:2026/02/16
ビルコード: 1311302662
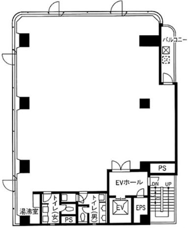
青山SIビル 4階 平面図
建物詳細

青山SIビル(東京都渋谷区渋谷1丁目1-11)は、最寄り駅「渋谷」駅から徒歩約6分の地上7階建ての賃貸オフィスビルです。竣工は1992年7月、エレベーターは1基あります。

基準階貸室面積は約64.07坪、基準階天井高は2530mmです。機械警備・個別空調・OAフロア・男女別トイレ等の設備仕様となっています。

最新の空室状況・賃貸条件などお気軽にお問合せ下さい。

賃貸条件

所在階 4階
用途 事務所
面積 64.07坪 / 211.8m²
賃料 相談
共益費 相談
坪単価 -
預託金 12ヶ月
入居時期 2026年7月上旬
トイレ 男女別

物件概要

所在地 東京都渋谷区渋谷1丁目1-11
交通
  • JR山手線 渋谷駅 6分
規模 地上7階建て
竣工 1992年7月
耐震基準 新耐震基準
構造 鉄骨鉄筋コンクリート(SRC造)
基準階坪数 64.07坪
基準階天井高 2,530mm

物件詳細・設備

エレベーター 1基
駐車場 あり
情報通信設備 光ファイバー
空調 個別空調
セキュリティ 機械警備

青山SIビルの空室一覧

↓ 募集区画クリックで詳細情報をご覧いただけます

募集区画 面積 用途 賃料+共益費 坪単価(共益費込) 入居時期 平面図 お気に入り
NEW 4階 64.07坪 事務所 相談 - 2026年7月上旬

近隣の条件が近い物件

東京都渋谷区渋谷2丁目3-5 COERU渋谷二丁目

地上10階建て

64.65坪

東京メトロ銀座線 渋谷駅 7分

東京都渋谷区渋谷2丁目12-15

地上8階 / 地下2階

62.78坪

JR山手線 渋谷駅 7分

東京都渋谷区渋谷1丁目8-1

地上8階 / 地下1階

61.54坪

JR山手線 渋谷駅 5分

東京都港区南青山5丁目16-14

地上3階建て

65.46坪

東京メトロ銀座線 表参道駅 6分

東京都渋谷区東1丁目13-14

地上3階建て

61.53坪

JR山手線 渋谷駅 6分

東京都渋谷区神宮前6丁目18-1

地上8階 / 地下1階

66.95坪

東京メトロ千代田線 明治神宮前<原宿>駅 7分

東京都渋谷区渋谷1丁目7-6

地上9階建て

69.76坪

JR山手線 渋谷駅 5分

東京都渋谷区桜丘町22-14

地上9階 / 地下3階

63.1坪

東京メトロ銀座線 渋谷駅 6分

東京都渋谷区渋谷2丁目22-16

地上7階 / 地下1階

59.68坪

JR山手線 渋谷駅 2分

東京都渋谷区渋谷3丁目8-12

地上10階建て

69.28坪

JR山手線 渋谷駅 3分

東京都渋谷区東1丁目3-10

地上6階建て

58.63坪

JR山手線 渋谷駅 9分

東京都渋谷区渋谷1丁目17-2

地上12階建て

57.58坪

東急東横線 渋谷駅 1分

東京都港区南青山5丁目13-3

地上9階 / 地下1階

68.48坪

東京メトロ千代田線 表参道駅 6分

東京都港区南青山2丁目26-37

地上9階建て

63.21坪

東京メトロ銀座線 外苑前駅 1分

※表示金額はすべて「税抜き表示」となっています。 / ※間取図は現況を優先させていただきます。 / ※駐車場は建物設備としての有無のため、有の場合でも賃貸条件としての空きを保証するものではありません。 / ※掲載情報の誤りや変更、未掲載情報の掲載依頼がございましたら、お手数ですが お問い合わせフォーム よりご連絡ください。

掲載物件数:2,425件  4,418区画

お気に入りに追加