イーストネットビルディングⅠ期の空室一覧
↓ 募集区画クリックで詳細情報をご覧いただけます
| 募集区画 | 面積 | 用途 | 賃料+共益費 | 坪単価(共益費込) | 入居時期 | 平面図 | お気に入り |
|---|---|---|---|---|---|---|---|
| 7階 | 136.99坪 | 事務所 | 相談 | - | 2026年2月上旬 |
※表⽰⾦額は、敷⾦・保証⾦などの預かり⾦を除き、別途消費税がかかります。 / ※間取図は現況を優先させていただきます。 / ※駐車場は建物設備としての有無のため、有の場合でも賃貸条件としての空きを保証するものではありません。 / ※掲載情報の誤りや変更、未掲載情報の掲載依頼がございましたら、お手数ですが お問い合わせフォームよりご連絡ください。
近隣の条件が近い物件
掲載物件数:2,403件
4,349区画


































建物詳細
イーストネットビルディングⅠ期(東京都江東区東陽7丁目1-1)は、最寄り駅「東陽町」駅から徒歩約7分の地上8階建ての賃貸オフィスビルです。竣工は2001年3月、エレベーターは4基あります。
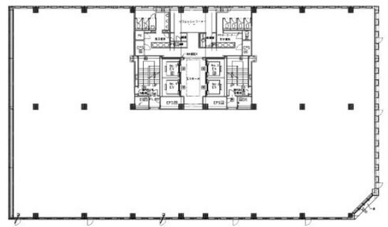
基準階貸室面積は約343坪、コの字型の形状をしております。基準階天井高は2750mmです。お手洗い等の共用部は執務室の外に配置されています。機械警備・OAフロア・男女別トイレの設備仕様となっています。
最新の空室状況・賃貸条件などお気軽にお問合せ下さい。