GMビル 8階

最終情報更新日:2026/03/12
ビルコード: 1310203498
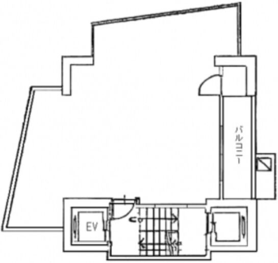
GMビル 8階 平面図

賃貸条件

所在階 8階
用途 事務所
面積 20.58坪 / 68.03m²
賃料 相談
共益費 相談
坪単価 -
預託金 12ヶ月
入居時期 即入居
その他費用 償却: なし
礼金: なし
更新料・再契約料: なし
トイレ 男女別
床仕様 タイルカーペット

物件概要

所在地 東京都中央区銀座4丁目10-10
交通
  • 東京メトロ日比谷線 東銀座駅 1分
  • 東京メトロ銀座線 銀座駅 2分
  • 東京メトロ丸ノ内線 銀座駅 6分
規模 地上11階 / 地下2階
竣工 1974年1月
構造 鉄骨鉄筋コンクリート(SRC造)
基準階坪数 21.55坪

物件詳細・設備

エレベーター 2基
情報通信設備 光ファイバー
空調 個別空調
セキュリティ 機械警備

GMビルの空室一覧

↓ 募集区画クリックで詳細情報をご覧いただけます

募集区画 面積 用途 賃料+共益費 坪単価(共益費込) 入居時期 平面図 お気に入り
8階 20.58坪 事務所 相談 - 即入居

近隣の条件が近い物件

東京都中央区銀座5丁目14-14

地上9階 / 地下1階

21.18坪

東京メトロ日比谷線 東銀座駅 1分

東京都中央区銀座4丁目14-8

地上10階建て

19.78坪

東京メトロ日比谷線 東銀座駅 1分

東京都中央区銀座4丁目6-10

地上9階 / 地下1階

22.0坪

東京メトロ銀座線 銀座駅 1分

東京都中央区築地1丁目12-22

地上13階建て

19.17坪

東京メトロ日比谷線 東銀座駅 3分

東京都中央区銀座4丁目11-7

地上8階 / 地下1階

23.0坪

都営浅草線 東銀座駅 2分

東京都中央区銀座1丁目14-7

地上10階 / 地下1階

22.02坪

東京メトロ有楽町線 銀座一丁目駅 3分

東京都中央区銀座7丁目18-14

地上7階建て

21.97坪

都営大江戸線 築地市場駅 3分

東京都中央区銀座8丁目10-4

地上9階 / 地下1階

21.87坪

JR山手線 新橋駅 5分

東京都中央区銀座2丁目8-5

地上9階 / 地下1階

18.62坪

東京メトロ有楽町線 銀座一丁目駅 1分

東京都中央区新富2丁目2-13

地上7階 / 地下1階

19.71坪

東京メトロ有楽町線 新富町駅 1分

東京都中央区銀座1丁目8-7

地上9階 / 地下1階

21.92坪

東京メトロ有楽町線 銀座一丁目駅 2分

東京都中央区新富2丁目4-5

地上8階建て

19.74坪

東京メトロ有楽町線 新富町駅 1分

東京都中央区銀座7丁目15-9

地上9階建て

18.34坪

東京メトロ銀座線 銀座駅 4分

東京都中央区新富2丁目3-7

地上6階建て

22.06坪

東京メトロ有楽町線 新富町駅 1分

東京都中央区京橋3丁目9-2

地上10階 / 地下1階

21.5坪

都営浅草線 宝町駅 1分

東京都中央区銀座1丁目4-3

地上10階建て

22.32坪

東京メトロ有楽町線 銀座一丁目駅 2分

東京都中央区銀座2丁目14-17

地上5階建て

17.4坪

都営浅草線 東銀座駅 3分

東京都中央区京橋2丁目11-4

地上11階建て

19.8坪

都営浅草線 宝町駅 1分

東京都中央区銀座5丁目15-1

地上9階 / 地下4階

15.91坪

東京メトロ日比谷線 東銀座駅 1分

東京都中央区京橋2丁目7-14

地上8階 / 地下1階

21.52坪

東京メトロ銀座線 京橋駅 2分

※表示金額はすべて「税抜き表示」となっています。 / ※間取図は現況を優先させていただきます。 / ※駐車場は建物設備としての有無のため、有の場合でも賃貸条件としての空きを保証するものではありません。 / ※掲載情報の誤りや変更、未掲載情報の掲載依頼がございましたら、お手数ですが お問い合わせフォーム よりご連絡ください。

掲載物件数:2,363件  4,293区画

お気に入りに追加