賃貸条件
| 所在階 | 1階 |
|---|---|
| 用途 | 事務所、店舗 |
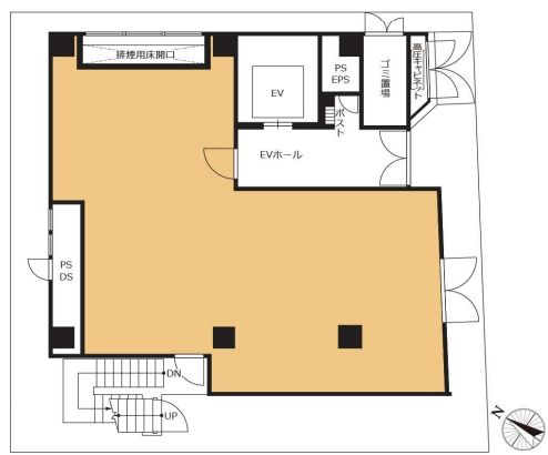
| 面積 | 21.92坪 / 72.46m² |
| 賃料 | 相談 |
| 共益費 | 相談 |
| 坪単価 | - |
| 預託金 | 相談 |
| 入居時期 | 2026年7月下旬 |
| その他費用 | 礼金: 1ヶ月 更新料・再契約料: 1ヶ月 |
| トイレ | 男女共用 |
物件概要
| 所在地 | 東京都中央区銀座1丁目8-7 |
|---|---|
| 交通 |
|
| 規模 | 地上9階 / 地下1階 |
| 竣工 | 2017年3月 |
| 耐震基準 | 新耐震基準 |
| 構造 | 鉄骨(S造) |
| 基準階坪数 | 29.67坪 |
| 基準階天井高 | 3,300mm |
物件詳細・設備
| エレベーター | 1基 |
|---|---|
| 駐車場 | なし |
| 情報通信設備 | 光ファイバー |
| 空調 | 個別空調 |
| セキュリティ | 機械警備 |
VORT銀座DDI(旧:コリエ銀座)の空室一覧
↓ 募集区画クリックで詳細情報をご覧いただけます
| 募集区画 | 面積 | 用途 | 賃料+共益費 | 坪単価(共益費込) | 入居時期 | 平面図 | お気に入り |
|---|---|---|---|---|---|---|---|
| NEW1階 | 21.92坪 | 事務所、店舗 | 相談 | - | 2026年7月下旬 |
※表⽰⾦額は、敷⾦・保証⾦などの預かり⾦を除き、別途消費税がかかります。 / ※間取図は現況を優先させていただきます。 / ※駐車場は建物設備としての有無のため、有の場合でも賃貸条件としての空きを保証するものではありません。 / ※掲載情報の誤りや変更、未掲載情報の掲載依頼がございましたら、お手数ですが お問い合わせフォームよりご連絡ください。
近隣の条件が近い物件
掲載物件数:2,372件
4,307区画























建物詳細
VORT銀座DDI(中央区銀座1丁目)は、銀座一丁目駅から徒歩約2分の賃貸オフィスビルです。
建物は2017年3月竣工、規模は地上9階・地下1階建てです。エレベーターは1基あります。
基準階貸室面積は29.67坪、天井高は3300mmです。
最新の空室状況や賃料・賃貸条件など、お気軽にお問合せ下さい。