03-6264-1890
受付時間 9:00 - 18:30 定休日 土日祝
受付時間 9:00 - 18:30 定休日 土日祝
VORT銀座DDI(旧:コリエ銀座) 1階
物件情報
| 所在地 | 東京都中央区銀座1丁目8-7 |
|---|---|
| 最寄駅 |
東京メトロ有楽町線 銀座一丁目駅 2分 東京メトロ銀座線 京橋駅 4分 東京メトロ丸ノ内線 銀座駅 5分 JR山手線 有楽町駅 7分 |
| 竣工 | 2017年3月 |
| 階数 | 地上9階 / 地下1階 |
| エレベーター | 1基 |
賃貸条件
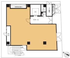
| 募集区画 | 1階 |
|---|---|
| 賃料 (共益費) | 相談(相談) |
| 敷金 /礼金 | 10ヶ月/1ヶ月 |
|
保証金
/敷引/償却 |
-/-/なし |
| 面積 | 21.92坪 |
| 入居条件 | 2026年7月下旬 |