NEW

KHK池袋ビル 6階

最終情報更新日:2026/03/04
ビルコード: 1311600259
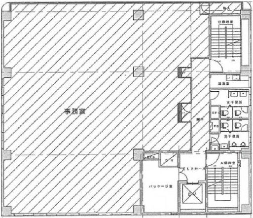
KHK池袋ビル 6階 平面図
建物詳細

KHK池袋ビル(豊島区南池袋2丁目28-13)は、池袋駅徒歩5分の賃貸オフィスビルです。

建物の規模は地上8階・地下2階建て、竣工は1983年11月(新耐震基準)です。

エレベーターは1基あります。基準階のフロア面積は97.87坪、天井高は2500mmです。機械警備・個別空調・OAフロア・男女別トイレなどの設備が整っています。

最新の空室状況や賃料・賃貸条件など、お気軽にお問合せ下さい。

担当者からのコメント
※2028年12月末までの定期借家契約となります。

賃貸条件

所在階 6階 居抜き
用途 事務所
面積 94.87坪 / 313.62m²
賃料 相談
共益費 360,506円
坪単価 -
預託金 6ヶ月
入居時期 相談
その他費用 償却: なし
礼金: なし
更新料・再契約料: 1ヶ月
天井高 2,500mm
トイレ 男女別
床仕様 OAフロア

物件概要

所在地 東京都豊島区南池袋2丁目28-13
交通
  • JR山手線 池袋駅 5分
  • 都電荒川線 東池袋四丁目駅 7分
規模 地上8階 / 地下2階
竣工 1983年11月
耐震基準 新耐震基準
構造 鉄骨鉄筋コンクリート(SRC造)
基準階坪数 97.87坪
基準階天井高 2,500mm
延床面積 4,081.45㎡

物件詳細・設備

エレベーター 1基
駐車場 あり
情報通信設備 光ファイバー
空調 個別空調
セキュリティ 機械警備
リニューアル履歴 2013年 リニューアル済

KHK池袋ビルの空室一覧

↓ 募集区画クリックで詳細情報をご覧いただけます

募集区画 面積 用途 賃料+共益費 坪単価(共益費込) 入居時期 平面図 お気に入り
NEW 6階 居抜き 94.87坪 事務所 相談 - 相談

近隣の条件が近い物件

東京都豊島区東池袋1丁目25-6

地上12階建て

91.98坪

JR山手線 池袋駅 5分

東京都豊島区南池袋2丁目27-8

地上9階 / 地下1階

86.4坪

JR山手線 池袋駅 2分

東京都豊島区南池袋2丁目49-4

地上7階 / 地下1階

86.5坪

JR山手線 池袋駅 8分

東京都豊島区西池袋3丁目28-4

地上28階 / 地下4階

102.1坪

JR山手線 池袋駅 4分

東京都豊島区池袋2丁目52-8

地上9階 / 地下2階

102.0坪

JR山手線 池袋駅 7分

東京都豊島区千早2丁目30-11

地上4階建て

96.69坪

東京メトロ有楽町線 千川駅 4分

東京都豊島区東池袋3丁目1-1

地上60階 / 地下4階

78.65坪

東京メトロ有楽町線 東池袋駅 3分

東京都新宿区新小川町8丁目30

地上4階 / 地下2階

95.45坪

JR中央・総武線 飯田橋駅 8分

東京都新宿区大久保1丁目3-21

地上8階 / 地下1階

96.77坪

都営大江戸線 東新宿駅 1分

東京都文京区大塚5丁目7-12

地上10階建て

104.5坪

東京メトロ丸ノ内線 新大塚駅 1分

東京都文京区大塚5丁目3-13

地上8階 / 地下2階

84.95坪

東京メトロ丸ノ内線 新大塚駅 5分

東京都板橋区中丸町11-8

地上5階 / 地下1階

85.2坪

東京メトロ有楽町線 要町駅 8分

東京都豊島区南大塚2丁目25-15

地上12階 / 地下1階

106.38坪

東京メトロ丸ノ内線 新大塚駅 1分

東京都豊島区南池袋2丁目17-7

地上13階建て

71.88坪

JR山手線 池袋駅 5分

東京都新宿区新宿1丁目15-9

地上12階建て

95.71坪

東京メトロ丸ノ内線 新宿御苑前駅 3分

※表示金額はすべて「税抜き表示」となっています。 / ※間取図は現況を優先させていただきます。 / ※駐車場は建物設備としての有無のため、有の場合でも賃貸条件としての空きを保証するものではありません。 / ※掲載情報の誤りや変更、未掲載情報の掲載依頼がございましたら、お手数ですが お問い合わせフォーム よりご連絡ください。

掲載物件数:2,398件  4,322区画

お気に入りに追加