
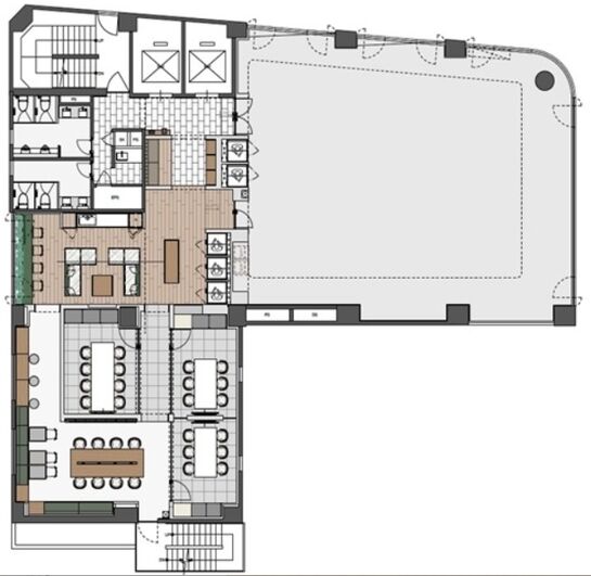
賃貸条件
| 所在階 | 5階内装付 |
|---|---|
| 用途 | 事務所 |
| 面積 | 110.54坪 / 365.42m² |
| 賃料 | 3,316,200円 |
| 共益費 | 賃料に含む |
| 坪単価 | 30,000円/坪(共益費込) |
| 預託金 | 6ヶ月 |
| 入居時期 | 2026年3月上旬 |
| その他費用 | 償却: なし 礼金: なし 更新料・再契約料: なし |
| 天井高 | 3,165mm |
| トイレ | 男女別 |
| 床仕様 | OAフロア |
| その他 | テレカンブース5室、執務室・会議室付※会議室に什器設置。※執務室に什器・備品は付きません。 |
物件概要
| 所在地 | 東京都港区芝大門1丁目3-4 |
|---|---|
| 交通 |
|
| 規模 | 地上9階建て |
| 竣工 | 1988年10月 |
| 耐震基準 | 新耐震基準 |
| 構造 | 鉄骨鉄筋コンクリート(SRC造) |
| 基準階坪数 | 110.05坪 |
| 基準階天井高 | 2,400mm |
| 周辺施設 | 駅至近で4路線が快適に使えるアクセスの良さ |
物件詳細・設備
| エレベーター | 2基 |
|---|---|
| 駐車場 | あり 平面式 4台 |
| 情報通信設備 | 光ファイバー |
| 空調 | 個別空調 |
| セキュリティ | 機械警備 |
| リニューアル履歴 | 2018年2月 低層部外装、エントランス拡張リニューアル済
2017年 リニューアル済 |
グランファースト芝大門(旧:ラウンドクロス芝大門)の空室一覧
↓ 募集区画クリックで詳細情報をご覧いただけます
| 募集区画 | 面積 | 用途 | 賃料+共益費 | 坪単価(共益費込) | 入居時期 | 平面図 | お気に入り |
|---|---|---|---|---|---|---|---|
| 8階内装付 | 110.54坪 | 事務所 | 3,426,740円 | 31,000円/坪 | 即入居 | ||
| NEW7階内装付 | 110.54坪 | 事務所 | 3,426,740円 | 31,000円/坪 | 2026年3月上旬 | ||
| NEW6階内装付 | 110.54坪 | 事務所 | 3,316,200円 | 30,000円/坪 | 2026年3月上旬 | ||
| NEW5階内装付 | 110.54坪 | 事務所 | 3,316,200円 | 30,000円/坪 | 2026年3月上旬 | ||
| 2階内装付 | 110.54坪 | 事務所 | 3,316,200円 | 30,000円/坪 | 即入居 |
※表⽰⾦額は、敷⾦・保証⾦などの預かり⾦を除き、別途消費税がかかります。 / ※間取図は現況を優先させていただきます。 / ※駐車場は建物設備としての有無のため、有の場合でも賃貸条件としての空きを保証するものではありません。 / ※掲載情報の誤りや変更、未掲載情報の掲載依頼がございましたら、お手数ですが お問い合わせフォームよりご連絡ください。
近隣の条件が近い物件
掲載物件数:2,383件
4,329区画

























建物詳細
グランファースト芝大門(旧:ラウンドクロス芝大門)港区芝大門)は、御成門駅・大門駅徒歩5分の賃貸オフィスビルです。
竣工は1988年(2018年リニューアル)、建物規模は地上9階建てです。エレベーターは2基あります。
駅至近で4路線が快適に使えるアクセスの良さと、視認性に優れた立地が魅力のビルです。
最新の空室状況や賃料・条件など、お気軽にお問合せ下さい。