
賃貸条件
| 所在階 | 地下1階 |
|---|---|
| 用途 | 事務所、店舗 |
| 面積 | 47.48坪 / 156.95m² |
| 賃料 | 1,424,400円 |
| 共益費 | 賃料に含む |
| 坪単価 | 30,000円/坪(共益費込) |
| 預託金 | 相談 |
| 入居時期 | 相談 |
| その他費用 | 償却: なし 礼金: なし 更新料・再契約料: なし |
| トイレ | 男女別 |
物件概要
| 所在地 | 東京都渋谷区南平台町1-10 |
|---|---|
| 交通 |
|
| 規模 | 地上10階建て |
| 竣工 | 1993年7月 |
| 耐震基準 | 新耐震基準 |
| 構造 | 鉄骨鉄筋コンクリート(SRC造) |
| 基準階坪数 | 57.1坪 |
| 延床面積 | 3,008.95㎡ |
物件詳細・設備
| エレベーター | 2基 |
|---|---|
| 駐車場 | あり |
| 情報通信設備 | 光ファイバー |
| 空調 | 個別空調 |
| セキュリティ | 機械警備 |
いちご南平台ビルの空室一覧
↓ 募集区画クリックで詳細情報をご覧いただけます
| 募集区画 | 面積 | 用途 | 賃料+共益費 | 坪単価(共益費込) | 入居時期 | 平面図 | お気に入り |
|---|---|---|---|---|---|---|---|
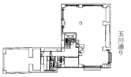
| NEW地下1階 | 47.48坪 | 事務所、店舗 | 1,424,400円 | 30,000円/坪 | 相談 |
※表⽰⾦額は、敷⾦・保証⾦などの預かり⾦を除き、別途消費税がかかります。 / ※間取図は現況を優先させていただきます。 / ※駐車場は建物設備としての有無のため、有の場合でも賃貸条件としての空きを保証するものではありません。 / ※掲載情報の誤りや変更、未掲載情報の掲載依頼がございましたら、お手数ですが お問い合わせフォームよりご連絡ください。
近隣の条件が近い物件
掲載物件数:2,366件
4,299区画



















建物詳細
いちご南平台ビル(渋谷区南平台町)は、神泉駅徒歩6分の賃貸オフィスビルです。
建物の規模は地上10階建て、竣工は1993年7月(新耐震基準)です。エレベーターは2基あります。
基準階のフロア面積は57.1坪です。機械警備・個別空調・OAフロア・男女別トイレなどの設備が整っています。
最新の空室状況や賃料・賃貸条件など、お気軽にお問合せ下さい。