渋谷第一生命ビルディング 6階

最終情報更新日:2026/01/06
ビルコード:1311301463
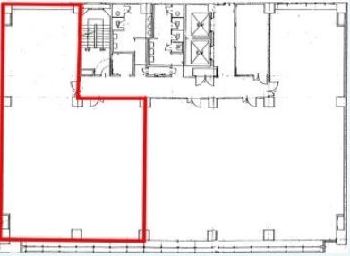
渋谷第一生命ビルディング 6階 平面図
建物詳細

渋谷第一生命ビルディング(渋谷区渋谷3丁目)は、渋谷駅徒歩3分の賃貸オフィスビルです。

建物の規模は地上10階建て、竣工は1979年2月です。エレベーターは2基あります。

基準階のフロア面積は161.98坪、天井高は2600mmです。

最新の空室状況や賃料・賃貸条件など、お気軽にお問合せ下さい。

賃貸条件

所在階6階
用途事務所
面積69.28坪 / 229.02m²
賃料相談
共益費賃料に含む
坪単価-
預託金相談
入居時期即入居
天井高2,600mm
トイレ男女別

物件概要

所在地東京都渋谷区渋谷3丁目8-12
交通
  • JR山手線 渋谷駅 3分
規模地上10階建て
竣工1979年2月
構造鉄骨鉄筋コンクリート(SRC造)
基準階坪数161.98坪
基準階天井高2,600mm
延床面積8,100.83㎡

物件詳細・設備

エレベーター2基
駐車場あり 機械式 30台
情報通信設備光ファイバー
空調セントラル空調・個別空調
セキュリティ有人管理

渋谷第一生命ビルディングの空室一覧

↓ 募集区画クリックで詳細情報をご覧いただけます

募集区画面積用途賃料+共益費坪単価(共益費込)入居時期平面図お気に入り
6階69.28坪事務所相談-即入居
3階①16.86坪事務所相談-即入居

※表⽰⾦額は、敷⾦・保証⾦などの預かり⾦を除き、別途消費税がかかります。 / ※間取図は現況を優先させていただきます。 / ※駐車場は建物設備としての有無のため、有の場合でも賃貸条件としての空きを保証するものではありません。 / ※掲載情報の誤りや変更、未掲載情報の掲載依頼がございましたら、お手数ですが お問い合わせフォームよりご連絡ください。

近隣の条件が近い物件

東京都渋谷区渋谷1丁目7-6

地上9階建て

69.76坪

JR山手線 渋谷駅 5分

東京都渋谷区東1丁目32-12

地上15階 / 地下2階

68.59坪

JR山手線 渋谷駅 4分

東京都港区南青山5丁目13-3

地上9階 / 地下1階

68.48坪

東京メトロ千代田線 表参道駅 6分

東京都渋谷区恵比寿西1丁目16-15

地上5階 / 地下2階

70.18坪

JR山手線 恵比寿駅 5分

東京都渋谷区神宮前6丁目18-1

地上8階 / 地下1階

66.95坪

東京メトロ千代田線 明治神宮前<原宿>駅 7分

東京都渋谷区道玄坂1丁目22-10

地上7階 / 地下1階

72.0坪

京王井の頭線 神泉駅 5分

東京都渋谷区渋谷2丁目3-5 COERU渋谷二丁目

地上10階建て

64.65坪

東京メトロ銀座線 渋谷駅 7分

東京都渋谷区神宮前5丁目34-13

地上3階 / 地下1階

65.62坪

東京メトロ半蔵門線 渋谷駅 5分

東京都渋谷区広尾1丁目3-14

地上9階 / 地下1階

69.37坪

JR山手線 恵比寿駅 5分

東京都渋谷区恵比寿1丁目15-1

地上6階建て

70.37坪

JR山手線 恵比寿駅 4分

東京都渋谷区宇田川町12-9

地上10階 / 地下1階

73.56坪

JR山手線 渋谷駅 5分

東京都渋谷区渋谷2丁目12-15

地上8階 / 地下2階

62.78坪

JR山手線 渋谷駅 7分

東京都港区南青山6丁目8-11

地上4階建て

71.67坪

東京メトロ銀座線 表参道駅 9分

東京都渋谷区桜丘町22-14

地上9階 / 地下3階

63.1坪

東京メトロ銀座線 渋谷駅 6分

掲載物件数:2,388件  4,334区画

お気に入りに追加