
賃貸条件
| 所在階 | 2階 |
|---|---|
| 用途 | 事務所 |
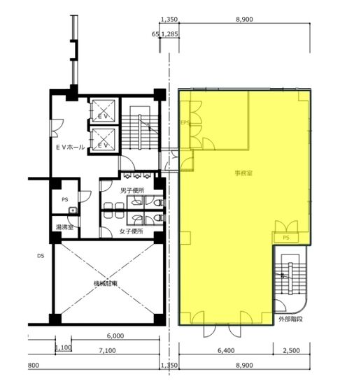
| 面積 | 38.78坪 / 128.19m² |
| 賃料 | 相談 |
| 共益費 | 賃料に含む |
| 坪単価 | - |
| 預託金 | 12ヶ月 |
| 入居時期 | 2026年3月上旬 |
| 天井高 | 2,500mm |
| トイレ | 男女別 |
| 床仕様 | OAフロア・タイルカーペット |
物件概要
| 所在地 | 東京都千代田区神田錦町3丁目1 |
|---|---|
| 交通 |
|
| 規模 | 地上8階建て |
| 竣工 | 1991年1月 |
| 耐震基準 | 新耐震基準 |
| 構造 | 鉄骨鉄筋コンクリート(SRC造) |
| 基準階坪数 | 160.82坪 |
| 基準階天井高 | 2,500mm |
物件詳細・設備
| エレベーター | 2基 |
|---|---|
| 駐車場 | あり |
| 情報通信設備 | 光ファイバー |
| 空調 | 個別空調 |
| セキュリティ | 機械警備・有人管理 |
| リニューアル履歴 | 2002年12月 リニューアル済 |
※表⽰⾦額は、敷⾦・保証⾦などの預かり⾦を除き、別途消費税がかかります。 / ※間取図は現況を優先させていただきます。 / ※駐車場は建物設備としての有無のため、有の場合でも賃貸条件としての空きを保証するものではありません。 / ※掲載情報の誤りや変更、未掲載情報の掲載依頼がございましたら、お手数ですが お問い合わせフォームよりご連絡ください。
近隣の条件が近い物件
掲載物件数:2,393件
4,351区画

















建物詳細
オームビル(東京都千代田区神田錦町3丁目1)は、最寄り駅「竹橋」駅から徒歩約3分の地上8階建ての賃貸オフィスビルです。竣工は1991年1月、エレベーターは2基あります。
基準階貸室面積は約160.82坪、基準階天井高は2500mm、各階約115坪の本館と、約39坪の新館の2区画に分かれた形状となっています。個別空調・OAフロア・男女別トイレ等の設備仕様、機械警備と有人管理の体制です。
最新の空室状況・賃貸条件などお気軽にお問合せ下さい。