03-6264-1890
受付時間 9:00 - 18:30 定休日 土日祝
受付時間 9:00 - 18:30 定休日 土日祝
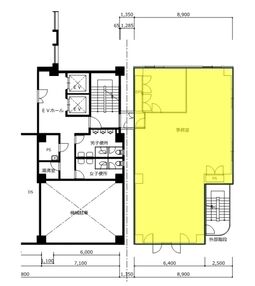
オームビル 新館2階
物件情報
| 所在地 | 東京都千代田区神田錦町3丁目1 |
|---|---|
| 最寄駅 |
東京メトロ東西線 竹橋駅 3分 東京メトロ半蔵門線 神保町駅 5分 都営新宿線 小川町駅 7分 東京メトロ丸ノ内線 大手町駅 9分 東京メトロ丸ノ内線 淡路町駅 10分 |
| 竣工 | 1991年1月 |
| 階数 | 地上8階建て |
| エレベーター | 2基 |
賃貸条件
| 募集区画 | 新館2階 |
|---|---|
| 賃料 (共益費) | 相談(賃料に含む) |
| 敷金 /礼金 | 12ヶ月/- |
|
保証金
/敷引/償却 |
なし |
| 面積 | 38.78坪 |
| 入居条件 | 2026年4月上旬 |