西新橋PR-EX 3階(募集終了)

虎ノ門ヒルズ至近、男女別トイレ・OAフロア等、設備充実!
最終情報更新日:2022/12/05
ビルコード: 1310302335
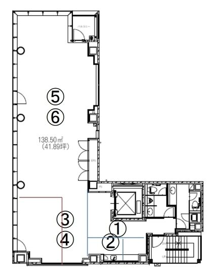
3階(居抜き)図面 3階(居抜き)図面
3階居抜き写真① 3階居抜き写真①
3階居抜き写真② 3階居抜き写真②
3階居抜き写真③ 3階居抜き写真③
3階居抜き写真④ 3階居抜き写真④
3階居抜き写真⑤ 3階居抜き写真⑤
3階居抜き写真⑥ 3階居抜き写真⑥
3階(居抜き)図面
3階居抜き写真①
3階居抜き写真②
3階居抜き写真③
3階居抜き写真④
3階居抜き写真⑤
3階居抜き写真⑥
建物詳細

西新橋PR-EX(港区西新橋2丁目4-12)は、内幸町駅徒歩5分の賃貸オフィスビルです。

虎ノ門ヒルズ駅、内幸町駅、新橋駅など複数駅・複数路線利用可能なビジネスロケーション。建物は地上9階地下1階建て、竣工は2008年12月(新耐震基準)です。

地下1階~1階は店舗区画、2階から9階までがオフィスフロアとなっています。オフィスの基準階フロア面積は41.89坪、基準階天井高は2680mmです。

最新の空室状況や賃料・賃貸条件など、お気軽にお問合せ下さい。

賃貸条件

所在階 3階 居抜き
面積 41.89坪 / 138.47m²

※募集終了区画です。最新の空室状況は こちら からご確認下さい。

物件概要

所在地 東京都港区西新橋2丁目4-12
交通
  • 都営三田線 内幸町駅 5分
  • 東京メトロ銀座線 虎ノ門駅 6分
  • 東京メトロ丸ノ内線 霞ケ関駅 6分
規模 地上9階 / 地下1階
竣工 2008年12月
耐震基準 新耐震基準
構造 鉄骨(S造)
基準階坪数 41.89坪
基準階天井高 2,680mm
延床面積 1,269.77㎡

物件詳細・設備

エレベーター 1基
駐車場 なし
情報通信設備 光ファイバー(MDFまで)
空調 個別空調
セキュリティ 機械警備

西新橋PR-EXの空室一覧

↓ 募集区画クリックで詳細情報をご覧いただけます

募集区画 面積 用途 賃料+共益費 坪単価(共益費込) 入居時期 平面図 お気に入り
6階 居抜き 40.29坪 事務所 相談 - 2026年7月上旬
NEW 2階 40.29坪 事務所 相談 - 2026年8月下旬

近隣の条件が近い物件

東京都港区虎ノ門1丁目17-1

地上36階 / 地下3階

43.9坪

東京メトロ日比谷線 虎ノ門ヒルズ駅 0分

東京都港区虎ノ門2丁目5-4

地上8階 / 地下1階

43.0坪

東京メトロ銀座線 虎ノ門駅 2分

東京都港区新橋5丁目23-7

地上14階 / 地下1階

43.04坪 〜 45.4坪

都営三田線 御成門駅 4分

東京都千代田区内幸町2丁目2-2

地上29階 / 地下5階

40.55坪

都営三田線 内幸町駅 1分

東京都港区西新橋1丁目16-3

地上9階建て

44.81坪

都営三田線 内幸町駅 4分

東京都港区虎ノ門2丁目9-16

地上14階 / 地下2階

41.73坪

東京メトロ日比谷線 虎ノ門ヒルズ駅 2分

東京都港区新橋6丁目13-1

地上9階建て

42.04坪

都営三田線 御成門駅 3分

東京都千代田区内幸町1丁目3-3

地上9階 / 地下2階

40.23坪

都営三田線 内幸町駅 1分

東京都港区新橋1丁目14-8

地上14階建て

40.08坪

東京メトロ銀座線 新橋駅 1分

東京都港区虎ノ門3丁目20-4

地上8階建て

40.87坪

東京メトロ日比谷線 神谷町駅 3分

東京都港区西新橋1丁目12-8

地上8階 / 地下1階

36.78坪

都営三田線 内幸町駅 3分

東京都港区東新橋1丁目9-1

地上37階 / 地下4階

41.7坪

都営大江戸線 汐留駅 1分

東京都港区虎ノ門3丁目6-2

地上9階 / 地下2階

39.0坪

東京メトロ日比谷線 神谷町駅 5分

※表示金額はすべて「税抜き表示」となっています。 / ※間取図は現況を優先させていただきます。 / ※駐車場は建物設備としての有無のため、有の場合でも賃貸条件としての空きを保証するものではありません。 / ※掲載情報の誤りや変更、未掲載情報の掲載依頼がございましたら、お手数ですが お問い合わせフォーム よりご連絡ください。

掲載物件数:2,330件  4,199区画