NEW

江戸見坂森ビル 5階

虎ノ門ヒルズ駅A2出口から約4分、ワンフロア131坪
最終情報更新日:2026/03/02
ビルコード: 1310301571
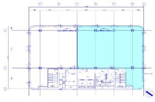
江戸見坂森ビル 5階 平面図
建物詳細

江戸見坂森ビル(港区虎ノ門4丁目1-40)は神谷町駅4番出口から徒歩1分のオフィスビルです。江戸見坂沿い、企業のオフィスの他、The Okura Tokyo(ホテルオークラ東京)や大使館などが集まるエリアです。建物の竣工は1974年11月(2009年リニューアル)、規模は地上8階・地下1階建てです。エレベーターは2基あります。

最新の空室状況・賃貸条件など、お気軽にお問合せ下さい。

賃貸条件

所在階 5階
用途 事務所
面積 74.9坪 / 247.6m²
賃料 相談
共益費 相談
坪単価 -
預託金 相談
入居時期 相談
天井高 2,450mm
トイレ 男女別

物件概要

所在地 東京都港区虎ノ門4丁目1-40
交通
  • 東京メトロ日比谷線 虎ノ門ヒルズ駅 4分
  • 東京メトロ銀座線 虎ノ門駅 8分
  • 東京メトロ日比谷線 神谷町駅 8分
規模 地上8階 / 地下1階
竣工 1974年11月
構造 鉄骨鉄筋コンクリート(SRC造)
基準階坪数 131.1坪
基準階天井高 2,450mm
延床面積 5,211.42㎡

物件詳細・設備

エレベーター 2基
駐車場 あり 20台
情報通信設備 光ファイバー
空調 個別空調
セキュリティ 機械警備
リニューアル履歴 2009年9月 リニューアル完了

江戸見坂森ビルの空室一覧

↓ 募集区画クリックで詳細情報をご覧いただけます

募集区画 面積 用途 賃料+共益費 坪単価(共益費込) 入居時期 平面図 お気に入り
NEW 5階 74.9坪 事務所 相談 - 相談
NEW 5階 56.9坪 事務所 相談 - 2026年3月上旬

近隣の条件が近い物件

東京都港区虎ノ門3丁目6-2

地上9階 / 地下2階

74.3坪

東京メトロ日比谷線 神谷町駅 5分

東京都港区虎ノ門4丁目3-10

地上7階建て

74.63坪

東京メトロ日比谷線 神谷町駅 1分

東京都港区新橋6丁目13-10

地上9階建て

75.16坪

都営三田線 御成門駅 3分

東京都港区芝公園1丁目3-8

地上8階建て

73.88坪

都営三田線 御成門駅 2分

東京都港区新橋4丁目24-8

地上9階 / 地下2階

75.3坪

JR山手線 新橋駅 4分

東京都港区愛宕1丁目3-4

地上16階 / 地下2階

70.06坪

東京メトロ日比谷線 虎ノ門ヒルズ駅 2分

東京都港区西新橋3丁目15-12

地上9階建て

69.95坪

東京メトロ日比谷線 虎ノ門ヒルズ駅 5分

東京都港区芝公園3丁目4-30

地上10階 / 地下4階

71.48坪

都営三田線 御成門駅 6分

東京都港区新橋6丁目9-4

地上8階 / 地下2階

77.19坪

JR山手線 新橋駅 5分

東京都港区浜松町1丁目27-13

地上10階建て

73.71坪

都営浅草線 大門駅 1分

東京都中央区銀座8丁目1番9、28(地番) 銀座天國ビル

地上13階 / 地下1階

74.34坪

東京メトロ銀座線 銀座駅 6分

東京都港区赤坂2丁目14-5

地上7階 / 地下2階

70.47坪

東京メトロ千代田線 赤坂駅 1分

東京都港区六本木7丁目4-8

地上4階 / 地下1階

73.28坪

東京メトロ日比谷線 六本木駅 4分

東京都港区芝大門1丁目2-14

地上13階建て

71.45坪

都営大江戸線 大門駅 2分

東京都港区西新橋2丁目12-1~7、9~16(地番)

地上14階 / 地下1階

81.39坪

都営三田線 内幸町駅 4分

東京都港区芝大門2丁目1-16

地上8階 / 地下1階

77.89坪

都営大江戸線 大門駅 3分

東京都中央区銀座5丁目15-8

地上14階 / 地下2階

74.41坪

東京メトロ日比谷線 東銀座駅 2分

※表示金額はすべて「税抜き表示」となっています。 / ※間取図は現況を優先させていただきます。 / ※駐車場は建物設備としての有無のため、有の場合でも賃貸条件としての空きを保証するものではありません。 / ※掲載情報の誤りや変更、未掲載情報の掲載依頼がございましたら、お手数ですが お問い合わせフォーム よりご連絡ください。

掲載物件数:2,405件  4,349区画

お気に入りに追加