NEW

虎ノ門鈴木ビル 5階

最終情報更新日:2026/02/13
ビルコード: 1310301550
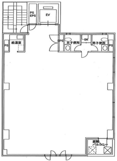
虎ノ門鈴木ビル 5階 平面図

賃貸条件

所在階 5階
用途 事務所
面積 40.87坪 / 135.1m²
賃料 相談
共益費 163,480円
坪単価 -
預託金 12ヶ月
入居時期 2026年6月上旬
その他費用 償却: なし
更新料・再契約料: なし
トイレ 男女別
床仕様 OAフロア

物件概要

所在地 東京都港区虎ノ門3丁目20-4
交通
  • 東京メトロ日比谷線 神谷町駅 3分
  • 都営三田線 御成門駅 6分
規模 地上8階建て
竣工 1994年3月
耐震基準 新耐震基準
構造 鉄骨鉄筋コンクリート(SRC造)
基準階坪数 40.87坪

物件詳細・設備

エレベーター 1基
駐車場 なし
情報通信設備 光ファイバー
空調 個別空調
セキュリティ 機械警備

虎ノ門鈴木ビルの空室一覧

↓ 募集区画クリックで詳細情報をご覧いただけます

募集区画 面積 用途 賃料+共益費 坪単価(共益費込) 入居時期 平面図 お気に入り
NEW 5階 40.87坪 事務所 相談 - 2026年6月上旬

近隣の条件が近い物件

東京都港区虎ノ門5丁目1-4

地上9階 / 地下1階

39.18坪

東京メトロ日比谷線 神谷町駅 1分

東京都港区芝公園3丁目5-8

地上6階 / 地下4階

39.7坪 〜 44.2坪

東京メトロ日比谷線 神谷町駅 8分

東京都港区赤坂1丁目14-14

地上6階 / 地下1階

40.55坪

東京メトロ南北線 六本木一丁目駅 4分

東京都港区虎ノ門2丁目9-16

地上14階 / 地下2階

41.73坪

東京メトロ日比谷線 虎ノ門ヒルズ駅 2分

東京都港区虎ノ門3丁目6-2

地上9階 / 地下2階

39.0坪

東京メトロ日比谷線 神谷町駅 5分

東京都港区芝大門1丁目1-15

地上6階建て

40.0坪

都営浅草線 大門駅 4分

東京都港区西新橋2丁目4-12

地上9階 / 地下1階

40.29坪

都営三田線 内幸町駅 5分

東京都港区西新橋3丁目13-7

地上12階建て

38.19坪

都営三田線 御成門駅 7分

東京都港区新橋5丁目23-7

地上14階 / 地下1階

43.04坪 〜 43.09坪

都営三田線 御成門駅 4分

東京都港区西新橋3丁目8-1

地上9階建て

43.04坪

都営三田線 内幸町駅 5分

東京都港区虎ノ門2丁目5-4

地上8階 / 地下1階

43.0坪

東京メトロ銀座線 虎ノ門駅 2分

東京都港区西新橋3丁目24-1

地上5階建て

45.0坪

都営三田線 御成門駅 1分

東京都港区浜松町1丁目16-1

地上11階建て

41.7坪 〜 41.9坪

JR山手線 浜松町駅 3分

※表示金額はすべて「税抜き表示」となっています。 / ※間取図は現況を優先させていただきます。 / ※駐車場は建物設備としての有無のため、有の場合でも賃貸条件としての空きを保証するものではありません。 / ※掲載情報の誤りや変更、未掲載情報の掲載依頼がございましたら、お手数ですが お問い合わせフォーム よりご連絡ください。

掲載物件数:2,418件  4,384区画

お気に入りに追加