前田セントラルビル 4階

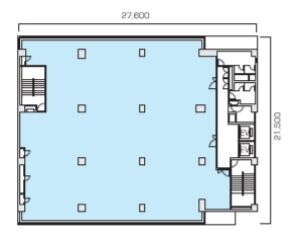
ワンフロア143.43坪、落ち着いた環境に立地。
最終情報更新日:2025/12/10
ビルコード:1310203147
前田セントラルビル 4階 平面図
建物詳細

前田セントラルビル(東京都中央区湊3丁目3-2)は、東京メトロ有楽町線「新富町」駅徒歩4分、地上6階建ての賃貸オフィスビルです。

外観はグレーの建物で、竣工は1988年2月、エレベーターは2基あります。

最新の募集状況・条件確認などお気軽にお問合せ下さい。

賃貸条件

所在階4階
用途事務所
面積143.43坪 / 474.14m²
賃料相談
共益費賃料に含む
坪単価-
預託金10ヶ月
入居時期即入居
天井高2,450mm
トイレ男女別
床仕様OAフロア

物件概要

所在地東京都中央区湊3丁目3-2
交通
  • 東京メトロ有楽町線 新富町駅 4分
  • 東京メトロ日比谷線 築地駅 6分
  • JR京葉線 八丁堀駅 6分
規模地上6階建て
竣工1988年2月
耐震基準新耐震基準
構造鉄筋コンクリート(RC造)
基準階坪数143.43坪
基準階天井高2,450mm

物件詳細・設備

エレベーター2基
駐車場あり 4台
情報通信設備光ファイバー
空調個別空調

前田セントラルビルの空室一覧

↓ 募集区画クリックで詳細情報をご覧いただけます

募集区画面積用途賃料+共益費坪単価(共益費込)入居時期平面図お気に入り
5階143.43坪事務所相談-2026年7月上旬
4階143.43坪事務所相談-即入居

※表⽰⾦額は、敷⾦・保証⾦などの預かり⾦を除き、別途消費税がかかります。 / ※間取図は現況を優先させていただきます。 / ※駐車場は建物設備としての有無のため、有の場合でも賃貸条件としての空きを保証するものではありません。 / ※掲載情報の誤りや変更、未掲載情報の掲載依頼がございましたら、お手数ですが お問い合わせフォームよりご連絡ください。

近隣の条件が近い物件

東京都中央区八丁堀2丁目3-9

地上7階建て

143.36坪

都営浅草線 宝町駅 3分

東京都中央区勝どき3丁目13-1

地上13階 / 地下1階

142.78坪

都営大江戸線 勝どき駅 3分

東京都中央区新川1丁目24-8

地上9階 / 地下1階

135.89坪 〜 140.32坪

東京メトロ日比谷線 八丁堀駅 8分

東京都中央区築地2丁目1-4

地上10階建て

150.04坪

東京メトロ有楽町線 新富町駅 2分

東京都江東区越中島2丁目1-30

地上6階 / 地下2階

144.95坪

JR京葉線 越中島駅 3分

東京都中央区明石町6-4

地上18階 / 地下2階

133.88坪

東京メトロ有楽町線 新富町駅 8分

東京都中央区築地1丁目12-22

地上13階建て

135.02坪

東京メトロ日比谷線 東銀座駅 3分

東京都中央区京橋1丁目7-1

地上28階 / 地下3階

149.92坪

東京メトロ銀座線 京橋駅 3分

東京都港区虎ノ門3丁目8-21

地上10階 / 地下2階

142.7坪

東京メトロ日比谷線 虎ノ門ヒルズ駅 2分

東京都中央区新富1丁目15-3

地上8階建て

157.8坪

東京メトロ日比谷線 八丁堀駅 3分

東京都港区西新橋3丁目16-11

地上14階 / 地下2階

141.13坪

東京メトロ日比谷線 虎ノ門ヒルズ駅 5分

東京都千代田区大手町1丁目7-2

地上31階 / 地下4階

139.3坪

東京メトロ丸ノ内線 大手町駅 0分

東京都中央区晴海1丁目8-11

地上39階 / 地下4階

135.91坪

都営大江戸線 勝どき駅 4分

東京都港区東新橋2丁目3-3

地上11階 / 地下1階

149.02坪

都営大江戸線 汐留駅 4分

掲載物件数:2,447件  4,449区画

お気に入りに追加