
賃貸条件
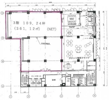
| 所在階 | 3階 |
|---|---|
| 用途 | 事務所、店舗 |
| 面積 | 109.24坪 / 361.12m² |
| 賃料 | 2,294,040円 |
| 共益費 | 546,200円 |
| 坪単価 | 26,000円/坪(共益費込) |
| 預託金 | 12ヶ月 |
| 入居時期 | 即入居 |
| その他費用 | 償却: なし 礼金: なし 更新料・再契約料: なし |
| 天井高 | 2,450mm |
| トイレ | 男女別 |
| 床仕様 | OAフロア・タイルカーペット |
物件概要
| 所在地 | 東京都中央区築地4丁目1-17 |
|---|---|
| 交通 |
|
| 規模 | 地上9階 / 地下1階 |
| 竣工 | 1973年10月 |
| 耐震基準 | 新耐震基準相当 |
| 構造 | 鉄骨鉄筋コンクリート(SRC造) |
| 基準階坪数 | 187.43坪 |
| 基準階天井高 | 2,450mm |
物件詳細・設備
| エレベーター | 2基 |
|---|---|
| 駐車場 | あり 機械式 36台 平面式 6台 |
| 情報通信設備 | 光ファイバー |
| 空調 | 個別空調 |
| セキュリティ | 機械警備・有人管理 |
| 建物設備 | 最上階にドッグラン有り/1階エントランスホール内喫煙所 |
| リニューアル履歴 | 2014年12月 新耐震基準対応工事完了
2014年11月 リニューアル済 |
銀座大野ビルの空室一覧
↓ 募集区画クリックで詳細情報をご覧いただけます
| 募集区画 | 面積 | 用途 | 賃料+共益費 | 坪単価(共益費込) | 入居時期 | 平面図 | お気に入り |
|---|---|---|---|---|---|---|---|
| 3階 | 109.24坪 | 事務所、店舗 | 2,840,240円 | 26,000円/坪 | 即入居 |
※表⽰⾦額は、敷⾦・保証⾦などの預かり⾦を除き、別途消費税がかかります。 / ※間取図は現況を優先させていただきます。 / ※駐車場は建物設備としての有無のため、有の場合でも賃貸条件としての空きを保証するものではありません。 / ※掲載情報の誤りや変更、未掲載情報の掲載依頼がございましたら、お手数ですが お問い合わせフォームよりご連絡ください。
近隣の条件が近い物件
掲載物件数:2,369件
4,308区画





















建物詳細
銀座大野ビル(中央区築地4丁目)は、東銀座駅から徒歩約2分の賃貸オフィスビルです。
建物は1973年10月竣工、規模は地上9階・地下1階建てです。2014年12月 新耐震基準対応工事完了済み。エレベーターは2基あります。
基準階貸室面積は187.43坪、男女別トイレ・機械警備・個別空調などの設備仕様となっております。
最新の空室状況や賃料・賃貸条件など、お気軽にお問合せ下さい。