NEW

COLOR・US銀座東(旧:金鵄ビル(きんしビル)) 1階 ドッグフレンドリー

2026年全面リニューアル!ペットフレンドリーフロアやラウンジなども完成予定。
最終情報更新日:2026/03/03
ビルコード: 1310201946
エントランスイメージ エントランスイメージ
8F テナント専⽤ラウンジ 8F テナント専⽤ラウンジ
屋上テラス 屋上テラス
エントランスイメージ
8F テナント専⽤ラウンジ
屋上テラス
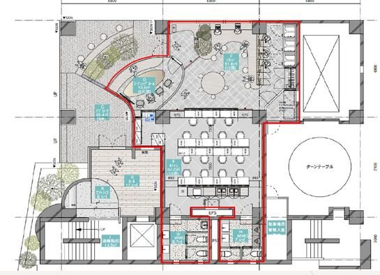
COLOR・US銀座東(旧:金鵄ビル(きんしビル)) 1階 ドッグフレンドリー 平面図
建物詳細

COLOR・US銀座東(旧:金鵄ビル(きんしビル)、東京都中央区新富2丁目8-1)は、最寄りの「新富町」駅から徒歩約1分の賃貸オフィスビルです。

建物は1988年10月竣工(2026年8月リニューアル予定)、規模は地上8階・地下1階建てです。エレベーターは1基あります。

2026年のリニューアルでは、ペットフレンドリー(ドッグフレンドリー)フロアやキッチンフロア、8階ラウンジ、屋上テラスなど、企業様の働き方やビジネススタイルに柔軟に対応可能な空間が完成する予定となっております。

OAフロア・男女別トイレ・機械警備・個別空調など基本的な設備もビジネスに対応する仕様となっております。

最新の空室状況や賃料・賃貸条件など、お気軽にお問合せ下さい。

担当者からのコメント
愛⽝との出社やお散歩も快適に⾏える、ドッグフレンドリーフロア。⼤切な愛⽝と過ごせるフリースペースや会議室、愛⽝のためのトイレ足ふきスペース、専⽤入り口を完備。詳細はぜひお気軽にお問合せください。

賃貸条件

所在階 1階 内装付
用途 事務所
面積 43.4坪 / 143.48m²
賃料 相談
共益費 賃料に含む
坪単価 -
預託金 8ヶ月
入居時期 2026年9月上旬
その他費用 償却: なし
礼金: なし
更新料・再契約料: なし
トイレ 男女別
床仕様 OAフロア
その他 固定デスク 15席(その他 9席)

物件概要

所在地 東京都中央区新富2丁目8-1
交通
  • 東京メトロ有楽町線 新富町駅 1分
  • 東京メトロ日比谷線 築地駅 6分
  • 東京メトロ日比谷線 八丁堀駅 7分
  • 都営浅草線 東銀座駅 9分
規模 地上8階 / 地下1階
竣工 1988年10月
耐震基準 新耐震基準
構造 鉄骨鉄筋コンクリート(SRC造)
基準階坪数 92.37坪

物件詳細・設備

エレベーター 1基
駐車場 あり 機械式
空調 個別空調
セキュリティ 機械警備
建物設備 8階 テナント共用ラウンジ、ルーフテラス
リニューアル履歴 2026年8月リニューアル完成予定

COLOR・US銀座東(旧:金鵄ビル(きんしビル))の空室一覧

↓ 募集区画クリックで詳細情報をご覧いただけます

募集区画 面積 用途 賃料+共益費 坪単価(共益費込) 入居時期 平面図 お気に入り
NEW 7階 内装付 87.61坪 事務所 相談 - 2026年9月上旬
NEW 6階 キッチンフロア 内装付 87.61坪 事務所 相談 - 2026年9月上旬
NEW 5階 内装付 87.61坪 事務所 相談 - 2026年9月上旬
NEW 4階 キッチンフロア 内装付 87.61坪 事務所 相談 - 2026年9月上旬
NEW 3階 内装付 87.61坪 事務所 相談 - 2026年9月上旬
NEW 2階 ライブオフィス 内装付 80.38坪 事務所 相談 - 2026年9月上旬
NEW 1階 ドッグフレンドリー 内装付 43.4坪 事務所 相談 - 2026年9月上旬

近隣の条件が近い物件

東京都中央区築地2丁目2-8

地上6階 / 地下1階

44.47坪

東京メトロ有楽町線 新富町駅 2分

東京都中央区京橋3丁目9-6

地上9階 / 地下1階

44.3坪 〜 45.9坪

都営浅草線 宝町駅 1分

東京都中央区京橋3丁目9-8

地上10階 / 地下1階

43.6坪

都営浅草線 宝町駅 1分

東京都中央区銀座1丁目13-12

地上10階 / 地下1階

42.0坪

東京メトロ有楽町線 銀座一丁目駅 1分

東京都中央区京橋2丁目12-4

地上10階建て

42.55坪

都営浅草線 宝町駅 1分

東京都中央区築地2丁目4-2

地上9階建て

47.5坪

東京メトロ有楽町線 新富町駅 1分

東京都中央区八丁堀1丁目108-3、108-4(地番)

地上8階建て

43.46坪

東京メトロ日比谷線 八丁堀駅 5分

東京都中央区銀座1丁目28-16

地上8階 / 地下1階

39.19坪 〜 39.29坪

東京メトロ有楽町線 新富町駅 2分

東京都中央区入船2丁目3-7

地上8階建て

47.67坪

東京メトロ有楽町線 新富町駅 3分

東京都中央区湊1丁目2-10

地上7階建て

46.5坪

JR京葉線 八丁堀駅 2分

東京都中央区銀座7丁目16-15

地上9階建て

42.58坪

都営大江戸線 築地市場駅 3分

東京都中央区銀座7丁目17-2

地上8階 / 地下1階

41.77坪

東京メトロ銀座線 銀座駅 9分

東京都中央区銀座6丁目13-6

地上5階 / 地下1階

41.65坪

東京メトロ日比谷線 東銀座駅 3分

東京都中央区京橋2丁目12-12

地上6階建て

40.5坪

都営浅草線 宝町駅 1分

東京都中央区築地7丁目2-13

地上6階建て

47.3坪

東京メトロ日比谷線 築地駅 4分

東京都中央区入船3丁目10-7

地上7階建て

48.2坪

東京メトロ有楽町線 新富町駅 3分

東京都中央区日本橋茅場町2丁目6-8

地上6階 / 地下1階

43.0坪

東京メトロ東西線 茅場町駅 2分

※表示金額はすべて「税抜き表示」となっています。 / ※間取図は現況を優先させていただきます。 / ※駐車場は建物設備としての有無のため、有の場合でも賃貸条件としての空きを保証するものではありません。 / ※掲載情報の誤りや変更、未掲載情報の掲載依頼がございましたら、お手数ですが お問い合わせフォーム よりご連絡ください。

掲載物件数:2,405件  4,349区画

お気に入りに追加