ヒューリック銀座三丁目ビル 6階

最終情報更新日:2025/10/01
ビルコード:1310201492
6階貸室内6階貸室内
6階貸室内6階貸室内
6階貸室内⑤6階貸室内⑤
6階貸室内6階貸室内
6階からの眺望①(銀座2丁目方面)6階からの眺望①(銀座2丁目方面)
6階からの眺望②(歌舞伎座方面)6階からの眺望②(歌舞伎座方面)
6階エレベーター6階エレベーター
駐車場駐車場
6階貸室内
6階貸室内
6階貸室内⑤
6階貸室内
6階からの眺望①(銀座2丁目方面)
6階からの眺望②(歌舞伎座方面)
6階エレベーター
駐車場
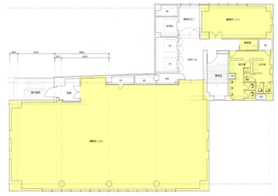
ヒューリック銀座三丁目ビル 6階 平面図
建物詳細

ヒューリック銀座三丁目ビル(東京都中央区銀座3丁目10-7)は、最寄りの「東銀座」駅から徒歩1分の賃貸オフィスビルです。

建物の規模は地上9階・地下2階建て、竣工は2001年2月(新耐震基準)です。エレベーターは2基設置されています。

基準階のフロア面積は123.5坪、天井高は2700mm、機械警備・個別空調・OAフロア・男女別トイレなどの設備が整っています。

最新の空室状況や賃料・賃貸条件など、お気軽にお問合せ下さい。

賃貸条件

所在階6階
用途事務所
面積123.5坪 / 408.26m²
賃料相談
共益費賃料に含む
坪単価-
預託金相談
入居時期相談
天井高2,700mm
トイレ男女別
床仕様OAフロア

物件概要

所在地東京都中央区銀座3丁目10-7
交通
  • 都営浅草線 東銀座駅 1分
規模地上9階 / 地下2階
竣工2001年2月
耐震基準新耐震基準
構造鉄骨(S造)
基準階坪数123.5坪
基準階天井高2,700mm
延床面積5,356.37㎡

物件詳細・設備

エレベーター2基
駐車場あり 機械式 28台
情報通信設備光ファイバー
空調個別空調
セキュリティ機械警備

ヒューリック銀座三丁目ビルの空室一覧

↓ 募集区画クリックで詳細情報をご覧いただけます

募集区画面積用途賃料+共益費坪単価(共益費込)入居時期平面図お気に入り
6階123.5坪事務所相談-相談
3階100.28坪事務所相談-相談

※表⽰⾦額は、敷⾦・保証⾦などの預かり⾦を除き、別途消費税がかかります。 / ※間取図は現況を優先させていただきます。 / ※駐車場は建物設備としての有無のため、有の場合でも賃貸条件としての空きを保証するものではありません。 / ※掲載情報の誤りや変更、未掲載情報の掲載依頼がございましたら、お手数ですが お問い合わせフォームよりご連絡ください。

近隣の条件が近い物件

東京都中央区銀座2丁目2-1(建設地付近住居表示)

地上12階 / 地下1階

128.37坪

東京メトロ有楽町線 銀座一丁目駅 1分

東京都港区新橋1丁目18-16

地上9階 / 地下3階

122.69坪

都営三田線 内幸町駅 1分

東京都港区新橋1丁目13-12

地上9階 / 地下2階

127.18坪

JR山手線 新橋駅 1分

東京都中央区日本橋茅場町1丁目9-2

地上9階 / 地下1階

125.0坪

東京メトロ日比谷線 茅場町駅 1分

東京都港区虎ノ門1丁目1-3

地上9階 / 地下2階

124.02坪

東京メトロ銀座線 虎ノ門駅 1分

東京都港区東新橋2丁目14-1

地上9階 / 地下1階

125.05坪

都営大江戸線 汐留駅 4分

東京都中央区築地1丁目13-1

地上23階 / 地下2階

116.02坪

東京メトロ日比谷線 東銀座駅 2分

東京都港区虎ノ門2丁目4-1

地上10階建て

125.0坪

東京メトロ銀座線 虎ノ門駅 3分

東京都千代田区丸の内1丁目11-1

地上32階 / 地下4階

115.36坪

JR京葉線 東京駅 1分

東京都中央区銀座5丁目13-16

地上9階 / 地下1階

135.33坪

東京メトロ日比谷線 東銀座駅 1分

東京都中央区八丁堀4丁目2-2

地上9階 / 地下1階

132.9坪

都営浅草線 宝町駅 3分

東京都千代田区大手町2丁目1-1

地上27階 / 地下5階

118.51坪

東京メトロ丸ノ内線 大手町駅 1分

掲載物件数:2,243件  4,132区画

お気に入りに追加