NEW

日本プレスセンタービル 2階

大型プレスセンターホールを有す、由緒あるビル
最終情報更新日:2026/03/02
ビルコード: 1310102317
ビル周辺風景② ビル周辺風景②
ビル周辺風景②
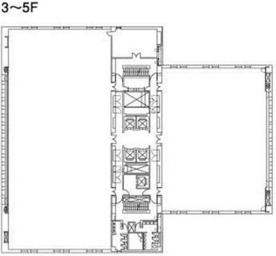
日本プレスセンタービル 2階 平面図
建物詳細

日本プレスセンタービル(千代田区内幸町2丁目2-1)は、内幸町駅徒歩2分のオフィスビルです。建物はドーム型の屋根が印象的な、地上11階地下3階建てで、竣工は1976年7月です。

最上階には約180坪のプレスセンターホールとレストランが、地下にはクリニック等の店舗、1階には書店があります。

最新の空室状況や賃料・賃貸条件など、お気軽にお問合せ下さい。

賃貸条件

所在階 2階
用途 事務所
面積 25.37坪 / 83.86m²
賃料 相談
共益費 相談
坪単価 -
預託金 10ヶ月
入居時期 即入居
トイレ 男女別
床仕様 OAフロア

物件概要

所在地 東京都千代田区内幸町2丁目2-1
交通
  • 都営三田線 内幸町駅 2分
  • 東京メトロ丸ノ内線 霞ケ関駅 5分
  • 東京メトロ銀座線 虎ノ門駅 7分
規模 地上11階 / 地下3階
竣工 1976年7月
構造 鉄骨鉄筋コンクリート(SRC造)
基準階坪数 588.0坪
基準階天井高 2,525mm
延床面積 25,737.0㎡

物件詳細・設備

エレベーター 5基
駐車場 あり 自走式 72台
情報通信設備 光ファイバー
空調 個別空調
セキュリティ 有人管理
建物設備 耐震安全性等:(財)日本建築センターの高層評価 建築大臣(現国土交通大臣)の特認

日本プレスセンタービルの空室一覧

↓ 募集区画クリックで詳細情報をご覧いただけます

募集区画 面積 用途 賃料+共益費 坪単価(共益費込) 入居時期 平面図 お気に入り
6階南 60.28坪 事務所 相談 - 即入居
NEW 6階 17.9坪 事務所 相談 - 即入居
NEW 2階 25.37坪 事務所 相談 - 即入居

近隣の条件が近い物件

東京都千代田区内幸町2丁目2-2

地上29階 / 地下5階

24.32坪 〜 26.43坪

都営三田線 内幸町駅 1分

東京都港区西新橋1丁目5-10

地上10階 / 地下1階

25.37坪

都営三田線 内幸町駅 1分

東京都港区西新橋1丁目4-14

地上7階 / 地下1階

24.06坪

都営三田線 内幸町駅 1分

東京都港区新橋1丁目18-2

地上4階建て

26.7坪

都営三田線 内幸町駅 1分

東京都港区虎ノ門1丁目1-21

地上9階 / 地下3階

27.0坪

東京メトロ銀座線 虎ノ門駅 0分

東京都港区西新橋1丁目17-11

地上9階建て

26.01坪

JR山手線 新橋駅 6分

東京都中央区銀座8丁目5-6

地上9階 / 地下2階

25.0坪

東京メトロ銀座線 新橋駅 2分

東京都港区虎ノ門1丁目13-3

地上9階 / 地下3階

23.03坪

東京メトロ銀座線 虎ノ門駅 1分

東京都港区西新橋1丁目1-1

地上27階 / 地下2階

29.44坪

都営三田線 内幸町駅 2分

東京都港区西新橋3丁目5-9

地上10階建て

26.0坪

東京メトロ日比谷線 虎ノ門ヒルズ駅 7分

東京都港区新橋4丁目7-2

地上8階 / 地下1階

26.0坪

JR山手線 新橋駅 5分

東京都港区新橋4丁目30-4

地上8階建て

24.68坪

都営三田線 内幸町駅 5分

東京都港区西新橋2丁目39-3

地上8階 / 地下1階

26.55坪

都営三田線 内幸町駅 4分

東京都港区虎ノ門1丁目16-2

地上9階建て

23.0坪

東京メトロ銀座線 虎ノ門駅 2分

東京都港区新橋1丁目18-2

地上9階 / 地下2階

22.0坪

JR山手線 新橋駅 4分

東京都千代田区有楽町1丁目2-15

地上10階 / 地下2階

27.79坪

東京メトロ日比谷線 日比谷駅 3分

※表示金額はすべて「税抜き表示」となっています。 / ※間取図は現況を優先させていただきます。 / ※駐車場は建物設備としての有無のため、有の場合でも賃貸条件としての空きを保証するものではありません。 / ※掲載情報の誤りや変更、未掲載情報の掲載依頼がございましたら、お手数ですが お問い合わせフォーム よりご連絡ください。

掲載物件数:2,399件  4,320区画

お気に入りに追加