NEW

内幸町ダイビル 1階

小区画有の大型ビル!1階はコンビニが入居中で便利です。
最終情報更新日:2026/02/25
ビルコード: 1310102313
内幸町ダイビル外観① 内幸町ダイビル外観①
内幸町ダイビル外観② 内幸町ダイビル外観②
ビル看板 ビル看板
ビルエントランス① ビルエントランス①
ビルエントランス② ビルエントランス②
エレベーター エレベーター
エントランスホール エントランスホール
ビル周辺風景① ビル周辺風景①
ビル周辺風景② ビル周辺風景②
ビル周辺風景③ ビル周辺風景③
ビル周辺風景④ ビル周辺風景④
内幸町ダイビル外観①
内幸町ダイビル外観②
ビル看板
ビルエントランス①
ビルエントランス②
エレベーター
エントランスホール
ビル周辺風景①
ビル周辺風景②
ビル周辺風景③
ビル周辺風景④
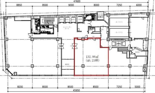
内幸町ダイビル 1階 平面図
建物詳細

内幸町ダイビル(千代田区内幸町1丁目3-3)は、最寄り「内幸町」駅徒歩1分の賃貸オフィスビルです。

建物の規模は地上9階・地下2階建て、竣工は1983年1月(新耐震基準)です。エレベーターは計4基(乗用3基+人荷用1基)あります。保安警備員と警備スタッフが常駐しておりセキュリティを強化したい企業様にもおすすめです。基準階貸室面積は235坪、天井高は2500mmです。

最新の募集状況や賃料・賃貸条件など、お気軽にお問合せ下さい。

賃貸条件

所在階 1階 居抜き
用途 事務所
面積 40.23坪 / 132.99m²
賃料 相談
共益費 相談
坪単価 -
預託金 相談
入居時期 2026年7月上旬
天井高 2,700mm
トイレ 男女別
床仕様 OAフロア

物件概要

所在地 東京都千代田区内幸町1丁目3-3
交通
  • 都営三田線 内幸町駅 1分
  • JR山手線 新橋駅 5分
  • 東京メトロ丸ノ内線 霞ケ関駅 8分
  • 東京メトロ日比谷線 日比谷駅 8分
規模 地上9階 / 地下2階
竣工 1983年1月
耐震基準 新耐震基準
構造 鉄骨鉄筋コンクリート(SRC造)
基準階坪数 235.0坪
基準階天井高 2,500mm
延床面積 10,435.0㎡

物件詳細・設備

エレベーター 4基
駐車場 あり 35台
情報通信設備 光ファイバー
空調 セントラル空調
セキュリティ 有人管理
建物設備 地下2階喫煙室あり
リニューアル履歴 2021年 非接触式トイレへリニューアル実施済
2011年3月 リニューアル済

内幸町ダイビルの空室一覧

↓ 募集区画クリックで詳細情報をご覧いただけます

募集区画 面積 用途 賃料+共益費 坪単価(共益費込) 入居時期 平面図 お気に入り
NEW 1階 居抜き 40.23坪 事務所 相談 - 2026年7月上旬

近隣の条件が近い物件

東京都港区新橋1丁目14-8

地上14階建て

40.08坪

東京メトロ銀座線 新橋駅 1分

東京都千代田区内幸町2丁目2-2

地上29階 / 地下5階

40.55坪

都営三田線 内幸町駅 1分

東京都港区西新橋2丁目4-12

地上9階 / 地下1階

40.29坪

都営三田線 内幸町駅 5分

東京都港区西新橋1丁目12-8

地上8階 / 地下1階

36.78坪

都営三田線 内幸町駅 3分

東京都中央区銀座6丁目13-6

地上5階 / 地下1階

41.65坪

東京メトロ日比谷線 東銀座駅 3分

東京都中央区銀座7丁目15-4

地上6階 / 地下1階

41.4坪

東京メトロ日比谷線 東銀座駅 4分

東京都千代田区有楽町1丁目2-14

地上9階 / 地下1階

43.67坪

東京メトロ日比谷線 日比谷駅 3分

東京都港区東新橋1丁目9-1

地上37階 / 地下4階

41.7坪

都営大江戸線 汐留駅 1分

東京都中央区銀座8丁目18-7

地上8階 / 地下1階

41.9坪

都営大江戸線 築地市場駅 4分

東京都港区西新橋1丁目16-3

地上9階建て

44.81坪

都営三田線 内幸町駅 4分

東京都港区西新橋3丁目13-7

地上12階建て

38.19坪

都営三田線 御成門駅 7分

東京都中央区銀座7丁目17-2

地上8階 / 地下1階

41.77坪

東京メトロ銀座線 銀座駅 9分

東京都中央区銀座7丁目16-15

地上9階建て

42.58坪

都営大江戸線 築地市場駅 3分

東京都中央区銀座2丁目12-12

地上9階 / 地下1階

39.5坪

東京メトロ日比谷線 東銀座駅 2分

東京都港区虎ノ門2丁目9-16

地上14階 / 地下2階

41.73坪

東京メトロ日比谷線 虎ノ門ヒルズ駅 2分

東京都中央区銀座1丁目6-8

地上9階建て

39.82坪

東京メトロ有楽町線 銀座一丁目駅 1分

東京都千代田区有楽町1丁目7-1

地上20階 / 地下4階

43.33坪

東京メトロ日比谷線 日比谷駅 1分

※表示金額はすべて「税抜き表示」となっています。 / ※間取図は現況を優先させていただきます。 / ※駐車場は建物設備としての有無のため、有の場合でも賃貸条件としての空きを保証するものではありません。 / ※掲載情報の誤りや変更、未掲載情報の掲載依頼がございましたら、お手数ですが お問い合わせフォーム よりご連絡ください。

掲載物件数:2,409件  4,378区画

お気に入りに追加