
賃貸条件
| 所在階 | 5階内装付 |
|---|---|
| 用途 | 事務所 |
| 面積 | 44.16坪 / 145.98m² |
| 賃料 | 1,324,800円 |
| 共益費 | 賃料に含む |
| 坪単価 | 30,000円/坪(共益費込) |
| 預託金 | なし |
| 入居時期 | 2026年4月上旬 |
| その他費用 | 償却: なし 礼金: なし 更新料・再契約料: なし |
| トイレ | 男女別 |
| 床仕様 | OAフロア |
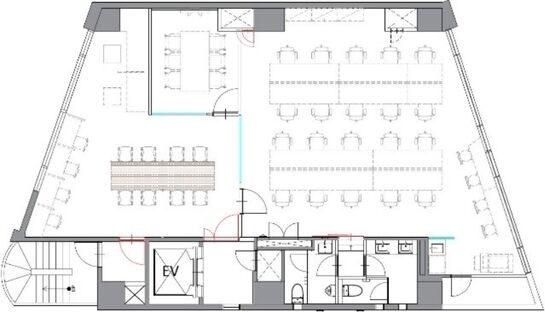
| その他 | 20名用執務室什器・内装造作付きフルセットアップオフィス(6名用会議室)/天井高:2,200~2,850㎜㎜ |
物件概要
| 所在地 | 東京都千代田区神田須田町2丁目2-5 |
|---|---|
| 交通 |
|
| 規模 | 地上8階 / 地下2階 |
| 竣工 | 1983年4月 |
| 耐震基準 | 新耐震基準 |
| 構造 | 鉄骨鉄筋コンクリート(SRC造) |
| 基準階坪数 | 44.15坪 |
物件詳細・設備
| エレベーター | 1基 |
|---|---|
| 駐車場 | あり |
| 情報通信設備 | 光ファイバー |
| 空調 | 個別空調 |
| セキュリティ | 機械警備 |
| リニューアル履歴 | 2023年1月 外観・エントランス、2・5階リニューアル完了 |
※表⽰⾦額は、敷⾦・保証⾦などの預かり⾦を除き、別途消費税がかかります。 / ※間取図は現況を優先させていただきます。 / ※駐車場は建物設備としての有無のため、有の場合でも賃貸条件としての空きを保証するものではありません。 / ※掲載情報の誤りや変更、未掲載情報の掲載依頼がございましたら、お手数ですが お問い合わせフォームよりご連絡ください。
近隣の条件が近い物件
掲載物件数:2,453件
4,457区画





















建物詳細
Cocoro Kanda Bldg.(旧:CTNビル、千代田区神田須田町2丁目2-5)は、最寄りの「神田」駅から徒歩4分の賃貸オフィスビルです。
建物は地上8階・地下2階建て、竣工は1983年4月(新耐震基準)で、2023年1月にリニューアルが完了しています。基準階貸室面積は約44坪です。
最新の募集状況や賃料・賃貸条件など、お気軽にお問合せ下さい。