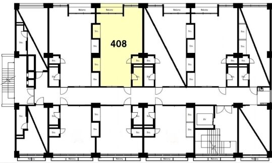
岡崎ビル 4階408

テナント専用屋上テラス!自由度の高い内装工事が可能。
最終情報更新日:2025/12/09
ビルコード:1311300723
702号室702号室
702号室702号室
702号室702号室
702号室702号室
707・708号室707・708号室
707・708号室707・708号室
707・708号室707・708号室
707・708号室707・708号室
707・708号室707・708号室
707・708号室707・708号室
707・708号室707・708号室
606号室606号室
屋上テラス(入居テナント専用)屋上テラス(入居テナント専用)
702号室
702号室
702号室
702号室
707・708号室
707・708号室
707・708号室
707・708号室
707・708号室
707・708号室
707・708号室
606号室
屋上テラス(入居テナント専用)
岡崎ビル 4階408 平面図
建物詳細

岡崎ビル(渋谷区渋谷2丁目14-13)は、渋谷駅徒歩4分の賃貸オフィスビル・貸店舗です。

建物は地上10階・地下1階建て、竣工は1961年1月です。エレベーターは1基あります。基準階フロア面積は36.5坪です。

最新の空室状況や賃料・賃貸条件など、お気軽にお問合せ下さい。

賃貸条件

所在階4階
用途事務所
面積15.27坪 / 50.47m²
賃料320,670円
共益費賃料に含む
坪単価21,000円/坪(共益費込)
預託金4ヶ月
入居時期相談
その他費用償却: 1ヶ月
礼金: なし

物件概要

所在地東京都渋谷区渋谷2丁目14-13
交通
  • JR山手線 渋谷駅 4分
規模地上10階 / 地下1階
竣工1961年1月
構造鉄骨鉄筋コンクリート(SRC造)
基準階坪数36.5坪

物件詳細・設備

エレベーター1基
駐車場なし
空調個別空調
建物設備屋上リフレッシュテラス使用可(入居テナント限定)

岡崎ビルの空室一覧

↓ 募集区画クリックで詳細情報をご覧いただけます

募集区画面積用途賃料+共益費坪単価(共益費込)入居時期平面図お気に入り
10階100715.27坪事務所、店舗320,670円21,000円/坪即入居
8階80730.54坪事務所、店舗641,340円21,000円/坪即入居
4階40815.27坪事務所320,670円21,000円/坪相談

※表⽰⾦額は、敷⾦・保証⾦などの預かり⾦を除き、別途消費税がかかります。 / ※間取図は現況を優先させていただきます。 / ※駐車場は建物設備としての有無のため、有の場合でも賃貸条件としての空きを保証するものではありません。 / ※掲載情報の誤りや変更、未掲載情報の掲載依頼がございましたら、お手数ですが お問い合わせフォームよりご連絡ください。

近隣の条件が近い物件

東京都渋谷区渋谷2丁目10-14

地上10階建て

15.7坪

東京メトロ半蔵門線 渋谷駅 6分

東京都渋谷区渋谷2丁目14-6

地上8階建て

17.09坪

JR山手線 渋谷駅 7分

東京都渋谷区渋谷1丁目7-2

地上11階建て

15.26坪 〜 17.07坪

東京メトロ半蔵門線 渋谷駅 6分

東京都渋谷区渋谷3丁目6-19

地上8階 / 地下1階

16.0坪

JR山手線 渋谷駅 3分

東京都渋谷区渋谷1丁目2-5

地上14階 / 地下3階

15.25坪 〜 19.21坪

JR山手線 渋谷駅 7分

東京都渋谷区渋谷3丁目8-12

地上10階建て

16.86坪

JR山手線 渋谷駅 3分

東京都渋谷区渋谷1丁目20-1

地上6階 / 地下1階

17.12坪

JR山手線 渋谷駅 4分

東京都渋谷区渋谷1丁目1-3

地上9階 / 地下1階

18.29坪

JR山手線 渋谷駅 7分

東京都渋谷区渋谷3丁目17-4

地上10階建て

18.0坪

JR山手線 渋谷駅 2分

東京都渋谷区神宮前6丁目18-10

地上7階建て

17.31坪

JR山手線 渋谷駅 6分

東京都渋谷区円山町5-2

地上11階建て

16.61坪

京王井の頭線 神泉駅 4分

掲載物件数:2,440件  4,434区画

お気に入りに追加