東熱新川ビル 3階

最終情報更新日:2026/02/27
ビルコード: 1310200964
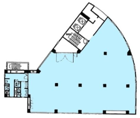
東熱新川ビル 3階 平面図

賃貸条件

所在階 3階
用途 事務所
面積 140.32坪 / 463.86m²
賃料 相談
共益費 相談
坪単価 -
預託金 相談
入居時期 即入居
その他費用 償却: なし
礼金: なし
更新料・再契約料: なし
天井高 2,450mm

物件概要

所在地 東京都中央区新川1丁目24-8
交通
  • 東京メトロ日比谷線 八丁堀駅 8分
  • 東京メトロ日比谷線 茅場町駅 9分
規模 地上9階 / 地下1階
竣工 1988年1月
耐震基準 新耐震基準
構造 鉄骨鉄筋コンクリート(SRC造)
基準階坪数 140.32坪

物件詳細・設備

エレベーター 2基
駐車場 あり
情報通信設備 光ファイバー
空調 セントラル空調

東熱新川ビルの空室一覧

↓ 募集区画クリックで詳細情報をご覧いただけます

募集区画 面積 用途 賃料+共益費 坪単価(共益費込) 入居時期 平面図 お気に入り
9階 140.32坪 事務所 相談 - 即入居
8階 140.32坪 事務所 相談 - 即入居
5階 140.32坪 事務所 相談 - 即入居
3階 140.32坪 事務所 相談 - 即入居
2階 135.89坪 事務所 相談 - 即入居

近隣の条件が近い物件

東京都中央区湊3丁目3-2

地上6階建て

143.43坪

東京メトロ有楽町線 新富町駅 4分

東京都中央区箱崎町8-1

地上7階 / 地下1階

129.89坪

東京メトロ半蔵門線 水天宮前駅 5分

東京都千代田区大手町1丁目7-2

地上31階 / 地下4階

139.3坪

東京メトロ丸ノ内線 大手町駅 0分

東京都千代田区内神田2丁目12-5

地上8階建て

139.82坪

JR山手線 神田駅 4分

東京都中央区明石町6-4

地上18階 / 地下2階

133.88坪

東京メトロ有楽町線 新富町駅 8分

東京都江東区越中島2丁目1-30

地上6階 / 地下2階

144.95坪

JR京葉線 越中島駅 3分

東京都中央区勝どき3丁目13-1

地上13階 / 地下1階

142.78坪

都営大江戸線 勝どき駅 3分

東京都中央区新川1丁目24-1

地上8階 / 地下1階

155.81坪

東京メトロ日比谷線 八丁堀駅 7分

東京都中央区日本橋小伝馬町14-4

地上8階 / 地下1階

135.46坪

東京メトロ日比谷線 小伝馬町駅 2分

東京都千代田区神田富山町10-2

地上7階 / 地下1階

143.55坪

都営新宿線 岩本町駅 4分

東京都中央区銀座7丁目16-21

地上9階 / 地下2階

136.39坪

都営浅草線 東銀座駅 4分

東京都港区西新橋2丁目12-1~7、9~16(地番)

地上14階 / 地下1階

139.7坪

都営三田線 内幸町駅 4分

東京都中央区晴海1丁目8-11

地上39階 / 地下4階

135.91坪

都営大江戸線 勝どき駅 4分

東京都千代田区神田鍛冶町3丁目3

地上9階 / 地下2階

144.79坪

JR山手線 神田駅 1分

東京都港区西新橋3丁目16-11

地上14階 / 地下2階

141.13坪

東京メトロ日比谷線 虎ノ門ヒルズ駅 5分

東京都千代田区神田佐久間町1-9(予定)

地上12階 / 地下1階

135.82坪

JR山手線 秋葉原駅 3分

※表示金額はすべて「税抜き表示」となっています。 / ※間取図は現況を優先させていただきます。 / ※駐車場は建物設備としての有無のため、有の場合でも賃貸条件としての空きを保証するものではありません。 / ※掲載情報の誤りや変更、未掲載情報の掲載依頼がございましたら、お手数ですが お問い合わせフォーム よりご連絡ください。

掲載物件数:2,352件  4,249区画

お気に入りに追加