
賃貸条件
| 所在階 | 3階 |
|---|---|
| 用途 | 事務所 |
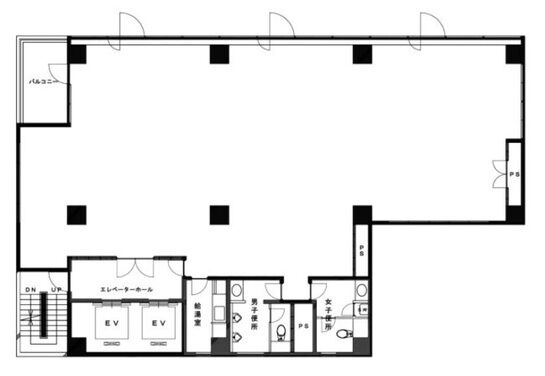
| 面積 | 68.1坪 / 225.12m² |
| 賃料 | 相談 |
| 共益費 | 相談 |
| 坪単価 | - |
| 預託金 | 8ヶ月 |
| 入居時期 | 2026年6月上旬 |
| その他費用 | 償却: 1ヶ月 更新料・再契約料: 5ヶ月 |
| 天井高 | 2,400mm |
| トイレ | 男女別 |
| 床仕様 | OAフロア |
物件概要
| 所在地 | 東京都中央区築地2丁目4-2 |
|---|---|
| 交通 |
|
| 規模 | 地上9階建て |
| 竣工 | 1991年6月 |
| 耐震基準 | 新耐震基準 |
| 構造 | 鉄骨鉄筋コンクリート(SRC造) |
| 基準階坪数 | 66.09坪 |
| 基準階天井高 | 2,500mm |
物件詳細・設備
| エレベーター | 2基 |
|---|---|
| 駐車場 | あり |
| 情報通信設備 | 光ファイバー(MDFまで) |
| 空調 | 個別空調 |
| セキュリティ | 機械警備 |
| リニューアル履歴 | 2021年3月 外観・EVホール・貸室内水回りリニューアル |
※表⽰⾦額は、敷⾦・保証⾦などの預かり⾦を除き、別途消費税がかかります。 / ※間取図は現況を優先させていただきます。 / ※駐車場は建物設備としての有無のため、有の場合でも賃貸条件としての空きを保証するものではありません。 / ※掲載情報の誤りや変更、未掲載情報の掲載依頼がございましたら、お手数ですが お問い合わせフォームよりご連絡ください。
近隣の条件が近い物件
掲載物件数:2,441件
4,438区画



















建物詳細
ACN築地242ビル(旧:築地242ビル、東京都中央区築地2丁目4-2)は、最寄りの「新富町」駅から徒歩1分の賃貸オフィスビルです。
建物は地上9階建て、竣工は1991年6月(新耐震基準)、ガラス張りの外観が特徴で、清潔感と高級感のある広々した1階エントランスも魅力です。エレベーターは2基設置されています。
基準階貸室面積は66.09坪、基準階天井高は2500mmです。
最新の空室状況や賃料・賃貸条件など、お気軽にお問合せ下さい。