NEW

MPR東上野ビル 9階

最終情報更新日:2026/04/01
ビルコード: 1310600088
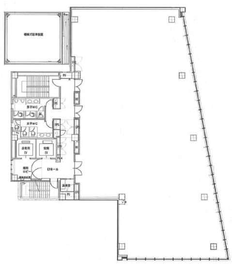
MPR東上野ビル 9階 平面図
建物詳細

MPR東上野ビル(東京都台東区東上野6丁目2-1)は、最寄り駅「稲荷町」駅から徒歩約1分の地上10階建ての賃貸オフィスビルです。竣工は2009年10月、エレベーターは2基あります。

基準階貸室面積は約146.03坪、分割区画での募集の場合もあります。基準階天井高は2700mmです。お手洗い等の共用部は執務室の外に配置されています。機械警備・個別空調・OAフロア・男女別トイレ等の設備仕様となっています。

最新の空室状況・賃貸条件などお気軽にお問合せ下さい。

賃貸条件

所在階 9階
用途 事務所
面積 87.16坪 / 288.13m²
賃料 相談
共益費 賃料に含む
坪単価 -
預託金 相談
入居時期 2026年10月上旬
天井高 2,750mm
トイレ 男女別
床仕様 OAフロア

物件概要

所在地 東京都台東区東上野6丁目2-1
交通
  • 東京メトロ銀座線 稲荷町駅 1分
  • JR山手線 上野駅 7分
  • 都営大江戸線 新御徒町駅 7分
規模 地上10階建て
竣工 2009年10月
耐震基準 新耐震基準
構造 鉄骨(S造)
基準階坪数 146.03坪
基準階天井高 2,700mm
延床面積 6,397.61㎡

物件詳細・設備

エレベーター 2基
駐車場 あり 機械式
情報通信設備 光ファイバー
空調 個別空調
セキュリティ 機械警備

MPR東上野ビルの空室一覧

↓ 募集区画クリックで詳細情報をご覧いただけます

募集区画 面積 用途 賃料+共益費 坪単価(共益費込) 入居時期 平面図 お気に入り
NEW 9階 87.16坪 事務所 相談 - 2026年10月上旬

近隣の条件が近い物件

東京都台東区東上野4丁目20-2

地上7階 / 地下1階

84.33坪

JR山手線 上野駅 4分

東京都台東区東上野5丁目24-8

地上11階 / 地下2階

84.5坪

東京メトロ銀座線 稲荷町駅 6分

東京都台東区東上野1丁目28-9

地上8階 / 地下1階

90.67坪

都営大江戸線 新御徒町駅 3分

東京都台東区上野7丁目6-5

地上10階建て

77.73坪

JR山手線 上野駅 1分

東京都中央区日本橋小伝馬町16

地上9階建て

85.6坪

総武線(快速) 馬喰町駅 2分

東京都千代田区東神田2丁目4-5

地上7階建て

81.28坪

都営新宿線 岩本町駅 4分

東京都荒川区東日暮里6丁目60-10

地上10階 / 地下1階

82.59坪

JR山手線 日暮里駅 2分

東京都千代田区神田錦町3丁目14-8他(地番)

地上9階建て

89.33坪

東京メトロ半蔵門線 神保町駅 4分

東京都中央区東日本橋2丁目15-5

地上8階建て

93.13坪

総武線(快速) 馬喰町駅 2分

東京都墨田区堤通1丁目19-9

地上33階 / 地下2階

89.04坪

東武伊勢崎線 東向島駅 9分

東京都中央区日本橋馬喰町2丁目3-2

地上10階 / 地下1階

94.34坪 〜 94.48坪

総武線(快速) 馬喰町駅 2分

東京都中央区日本橋小伝馬107-2他(地番)

地上8階建て

92.58坪

東京メトロ日比谷線 小伝馬町駅 1分

東京都墨田区錦糸1丁目2-1

地上22階 / 地下3階

84.39坪

JR中央・総武線 錦糸町駅 1分

※表示金額はすべて「税抜き表示」となっています。 / ※間取図は現況を優先させていただきます。 / ※駐車場は建物設備としての有無のため、有の場合でも賃貸条件としての空きを保証するものではありません。 / ※掲載情報の誤りや変更、未掲載情報の掲載依頼がございましたら、お手数ですが お問い合わせフォーム よりご連絡ください。

掲載物件数:2,358件  4,255区画

お気に入りに追加