
賃貸条件
| 所在階 | 2階 |
|---|---|
| 用途 | 事務所 |
| 面積 | 35.27坪 / 116.6m² |
| 賃料 | 480,954円 |
| 共益費 | 105,810円 |
| 坪単価 | 16,636円/坪(共益費込) |
| 預託金 | 7ヶ月 |
| 入居時期 | 2026年4月上旬 |
| その他費用 | 償却: 2ヶ月 礼金: 1ヶ月 更新料・再契約料: 1ヶ月 |
| トイレ | 男女別 |
物件概要
| 所在地 | 東京都千代田区神田和泉町1-3-13 |
|---|---|
| 交通 |
|
| 規模 | 地上6階建て |
| 竣工 | 1991年3月 |
| 耐震基準 | 新耐震基準 |
| 構造 | 鉄筋コンクリート(RC造) |
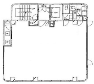
| 基準階坪数 | 35.21坪 |
物件詳細・設備
| エレベーター | 1基 |
|---|---|
| 駐車場 | あり 平面式 2台 |
| 情報通信設備 | 光ファイバー |
| 空調 | 個別空調 |
| セキュリティ | 機械警備 |
I・T秋葉原ビル(IT秋葉原ビル)の空室一覧
↓ 募集区画クリックで詳細情報をご覧いただけます
| 募集区画 | 面積 | 用途 | 賃料+共益費 | 坪単価(共益費込) | 入居時期 | 平面図 | お気に入り |
|---|---|---|---|---|---|---|---|
| 2階 | 35.27坪 | 事務所 | 586,764円 | 16,636円/坪 | 2026年4月上旬 |
※表⽰⾦額は、敷⾦・保証⾦などの預かり⾦を除き、別途消費税がかかります。 / ※間取図は現況を優先させていただきます。 / ※駐車場は建物設備としての有無のため、有の場合でも賃貸条件としての空きを保証するものではありません。 / ※掲載情報の誤りや変更、未掲載情報の掲載依頼がございましたら、お手数ですが お問い合わせフォームよりご連絡ください。
近隣の条件が近い物件
掲載物件数:2,416件
4,382区画



























建物詳細
I・T秋葉原ビル(千代田区神田和泉町)は、秋葉原駅徒歩3分の賃貸オフィスビルです。
建物の規模は地上6階建て、竣工は1991年3月(新耐震基準)です。
エレベーターは1基あります。基準階のフロア面積は35.21坪です。
最新の空室状況や賃料・賃貸条件など、お気軽にお問合せ下さい。