NEW

三共小石川THビル 2階

都心主要駅への高いアクセス性。静かな環境、車でのアクセスも良好!
最終情報更新日:2026/04/13
ビルコード: 1310500005
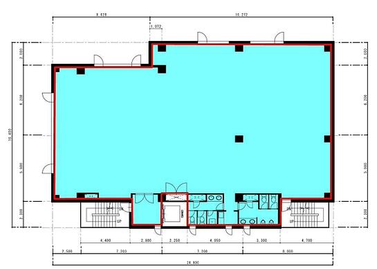
三共小石川THビル 2階 平面図
建物詳細

三共小石川THビル(東京都文京区小石川5丁目36-5)は、最寄り駅「茗荷谷」駅から徒歩約6分の地上7階・地下1階建ての賃貸オフィスビルです。竣工は1994年3月、エレベーターは1基設置されています。

基準階貸室面積は約105.82坪です。機械警備・個別空調・OAフロア・男女別トイレ等の設備仕様となっています。

最新の空室状況・賃貸条件などお気軽にお問合せ下さい。

賃貸条件

所在階 2階
用途 事務所
面積 108.58坪 / 358.94m²
賃料 相談
共益費 325,740円
坪単価 -
預託金 10ヶ月
入居時期 2026年10月上旬
その他費用 償却: 2ヶ月
更新料・再契約料: 新賃料1ヶ月
天井高 2,370mm
トイレ 男女別
床仕様 OAフロア

物件概要

所在地 東京都文京区小石川5丁目36-5
交通
  • 東京メトロ丸ノ内線 茗荷谷駅 6分
  • 都営三田線 白山駅 14分
規模 地上7階 / 地下1階
竣工 1994年3月
耐震基準 新耐震基準
構造 鉄骨鉄筋コンクリート(SRC造)
基準階坪数 105.82坪
基準階天井高 2,430mm
延床面積 2,609.07㎡

物件詳細・設備

エレベーター 1基
駐車場 あり 機械式
情報通信設備 光ファイバー
空調 個別空調
セキュリティ 機械警備
リニューアル履歴 2016年 リニューアル(EV・全フロア個別空調更新)

三共小石川THビルの空室一覧

↓ 募集区画クリックで詳細情報をご覧いただけます

募集区画 面積 用途 賃料+共益費 坪単価(共益費込) 入居時期 平面図 お気に入り
NEW 2階 108.58坪 事務所 相談 - 2026年10月上旬
地下1階 53.4坪 事務所 相談 - 即入居

※表示金額はすべて「税抜き表示」となっています。 / ※間取図は現況を優先させていただきます。 / ※駐車場は建物設備としての有無のため、有の場合でも賃貸条件としての空きを保証するものではありません。 / ※掲載情報の誤りや変更、未掲載情報の掲載依頼がございましたら、お手数ですが お問い合わせフォーム よりご連絡ください。

掲載物件数:2,353件  4,218区画

お気に入りに追加