
賃貸条件
| 所在階 | 3階 |
|---|---|
| 用途 | 事務所 |
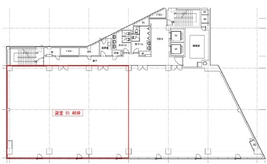
| 面積 | 91.46坪 / 302.34m² |
| 賃料 | 相談 |
| 共益費 | 賃料に含む |
| 坪単価 | - |
| 預託金 | 12ヶ月 |
| 入居時期 | 2026年2月上旬 |
| その他費用 | 償却: なし 更新料・再契約料: なし |
| 天井高 | 2,550mm |
| トイレ | 男女別 |
| 床仕様 | OAフロア |
物件概要
| 所在地 | 東京都品川区西五反田7丁目24-5 |
|---|---|
| 交通 |
|
| 規模 | 地上8階 / 地下1階 |
| 竣工 | 1988年1月 |
| 耐震基準 | 新耐震基準 |
| 構造 | 鉄骨鉄筋コンクリート(SRC造) |
| 基準階坪数 | 174.0坪 |
| 基準階天井高 | 2,550mm |
| 延床面積 | 6,958.23㎡ |
物件詳細・設備
| エレベーター | 2基 |
|---|---|
| 駐車場 | あり 機械式 |
| 情報通信設備 | 光ファイバー |
| 空調 | 個別空調 |
| セキュリティ | 機械警備・有人管理 |
| 建物設備 | 2020年10月1階 テナント専用ラウンジオープン |
| リニューアル履歴 | 2019年3月 基準階共用部フルリニューアル |
ONEST西五反田スクエア(旧:西五反田102ビル)の空室一覧
↓ 募集区画クリックで詳細情報をご覧いただけます
| 募集区画 | 面積 | 用途 | 賃料+共益費 | 坪単価(共益費込) | 入居時期 | 平面図 | お気に入り |
|---|---|---|---|---|---|---|---|
| NEW3階 | 91.46坪 | 事務所 | 相談 | - | 2026年2月上旬 |
※表⽰⾦額は、敷⾦・保証⾦などの預かり⾦を除き、別途消費税がかかります。 / ※間取図は現況を優先させていただきます。 / ※駐車場は建物設備としての有無のため、有の場合でも賃貸条件としての空きを保証するものではありません。 / ※掲載情報の誤りや変更、未掲載情報の掲載依頼がございましたら、お手数ですが お問い合わせフォームよりご連絡ください。
近隣の条件が近い物件
掲載物件数:2,257件
4,125区画





















建物詳細
ONEST西五反田スクエア(品川区西五反田7丁目24-5)は、JR五反田駅から徒歩8分・東急池上線 大崎広小路駅から徒歩6分に立地する賃貸オフィスビルです。
ビルの竣工は1988年1月(新耐震基準)、建物規模は地上8階・地下1階建てです。エレベーターは2基設置されています。
貸室基準階のフロア面積は174坪、天井高は2550mmです。機械警備・個別空調・OAフロア・男女別トイレなどの設備仕様です。
最新の空室状況や賃料・賃貸条件など、お気軽にお問合せ下さい。