NEW

オフィスT&U 2階

五反田駅3分、桜田通り沿い。視認性ある外観と魅力あるエントランス!
最終情報更新日:2026/04/20
ビルコード: 1310900088
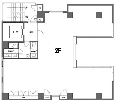
オフィスT&U 2階 平面図
建物詳細

オフィスT&U(品川区東五反田1丁目10-10)は、最寄り「五反田」駅徒歩4分の立地の賃貸オフィスビルです。

デザイン性にあふれるファサードと豪華なエントランスが特徴のビルで、建物規模は地上10階・地下1階建て、竣工は1989年9月です。

貸室内はOAフロア、正方形に近い形状でレイアウトの自由度も高い空間です。お手洗いも男女別で使いやすいオフィスです。

エレベーター不停止装置がついておりセキュリティ面でもご安心いただけます。

最新の募集状況や賃貸条件など、お気軽にお問合せ下さい。

賃貸条件

所在階 2階
用途 事務所
面積 50.97坪 / 168.49m²
賃料 相談
共益費 相談
坪単価 -
預託金 相談
入居時期 相談
その他費用 償却: 2ヶ月
更新料・再契約料: 1ヶ月
トイレ 男女別
床仕様 OAフロア

物件概要

所在地 東京都品川区東五反田1丁目10-10
交通
  • JR山手線 五反田駅 3分
  • 東急池上線 五反田駅 3分
  • 都営浅草線 五反田駅 1分
規模 地上10階 / 地下1階
竣工 1989年9月
耐震基準 新耐震基準
構造 鉄骨(S造)
基準階坪数 58.61坪

物件詳細・設備

エレベーター 1基
駐車場 なし
情報通信設備 光ファイバー
空調 個別空調
セキュリティ 機械警備
リニューアル履歴 2024年7月 エントランスホール・各階共用部 リニューアル

オフィスT&Uの空室一覧

↓ 募集区画クリックで詳細情報をご覧いただけます

募集区画 面積 用途 賃料+共益費 坪単価(共益費込) 入居時期 平面図 お気に入り
3階 55.74坪 事務所 相談 - 相談
NEW 2階 50.97坪 事務所 相談 - 相談

※表示金額はすべて「税抜き表示」となっています。 / ※間取図は現況を優先させていただきます。 / ※駐車場は建物設備としての有無のため、有の場合でも賃貸条件としての空きを保証するものではありません。 / ※掲載情報の誤りや変更、未掲載情報の掲載依頼がございましたら、お手数ですが お問い合わせフォーム よりご連絡ください。

掲載物件数:2,288件  4,161区画

お気に入りに追加