
担当者からのコメント
最上階、三面採光の明るい室内です。お気軽にお問合せください。賃貸条件
| 所在階 | 9階 |
|---|---|
| 用途 | 事務所 |
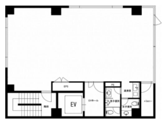
| 面積 | 31.7坪 / 104.79m² |
| 賃料 | 380,400円 |
| 共益費 | 95,100円 |
| 坪単価 | 15,000円/坪(共益費込) |
| 預託金 | 6ヶ月 |
| 入居時期 | 2026年3月中旬 |
| その他費用 | 償却: 1ヶ月 礼金: なし 更新料・再契約料: 新賃料1ヶ月 |
| 天井高 | 2,450mm |
| トイレ | 男女別 |
| 床仕様 | OAフロア |
物件概要
| 所在地 | 東京都中央区日本橋浜町3丁目41-4 |
|---|---|
| 交通 |
|
| 規模 | 地上9階建て |
| 竣工 | 1991年10月 |
| 耐震基準 | 新耐震基準 |
| 構造 | 鉄骨鉄筋コンクリート(SRC造) |
| 基準階坪数 | 31.7坪 |
| 基準階天井高 | 2,450mm |
物件詳細・設備
| エレベーター | 1基 |
|---|---|
| 情報通信設備 | 光ファイバー |
| 空調 | 個別空調 |
| セキュリティ | 機械警備 |
旭光ビル(キョッコウビル)の空室一覧
↓ 募集区画クリックで詳細情報をご覧いただけます
| 募集区画 | 面積 | 用途 | 賃料+共益費 | 坪単価(共益費込) | 入居時期 | 平面図 | お気に入り |
|---|---|---|---|---|---|---|---|
| 9階 | 31.7坪 | 事務所 | 475,500円 | 15,000円/坪 | 2026年3月中旬 |
※表⽰⾦額は、敷⾦・保証⾦などの預かり⾦を除き、別途消費税がかかります。 / ※間取図は現況を優先させていただきます。 / ※駐車場は建物設備としての有無のため、有の場合でも賃貸条件としての空きを保証するものではありません。 / ※掲載情報の誤りや変更、未掲載情報の掲載依頼がございましたら、お手数ですが お問い合わせフォームよりご連絡ください。
近隣の条件が近い物件
掲載物件数:2,447件
4,449区画















建物詳細
旭光ビル(キョッコウビル)(中央区日本橋浜町)は、浜町駅徒歩5分の賃貸オフィスビルです。
建物は地上9階建て、竣工は1991年10月(新耐震基準)です。
エレベーターは1基あります。基準階坪数は31.7坪、基準階天井高は2450mmです。