
賃貸条件
| 所在階 | 2階 |
|---|---|
| 用途 | 事務所 |
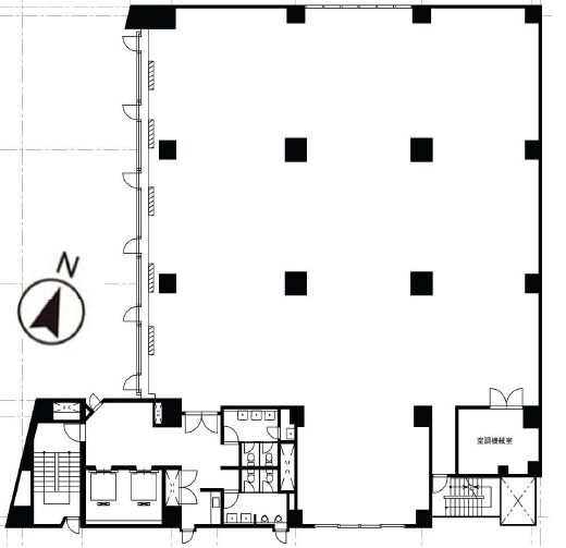
| 面積 | 159.81坪 / 528.3m² |
| 賃料 | 相談 |
| 共益費 | 559,335円 |
| 坪単価 | - |
| 預託金 | 12ヶ月 |
| 入居時期 | 2026年8月上旬 |
| その他費用 | 償却: 2ヶ月 更新料・再契約料: 1ヶ月 |
| 天井高 | 2,400mm |
| トイレ | 男女別 |
| 床仕様 | OAフロア |
物件概要
| 所在地 | 東京都中央区日本橋本町1丁目6-1 |
|---|---|
| 交通 |
|
| 規模 | 地上10階 / 地下2階 |
| 竣工 | 1974年6月 |
| 構造 | 鉄骨鉄筋コンクリート(SRC造) |
| 基準階坪数 | 171.91坪 |
| 基準階天井高 | 2,400mm |
物件詳細・設備
| エレベーター | 2基 |
|---|---|
| 駐車場 | あり 機械式駐車場:9台(@50,000円) 1階平面駐車場:1台(@60,000円) |
| 情報通信設備 | 光ファイバー(MDFまで) |
| 空調 | 各階フロアセントラル空調 |
| セキュリティ | 有人管理 |
| リニューアル履歴 | 2013年12月 耐震補強工事完了済 |
※表⽰⾦額は、敷⾦・保証⾦などの預かり⾦を除き、別途消費税がかかります。 / ※間取図は現況を優先させていただきます。 / ※駐車場は建物設備としての有無のため、有の場合でも賃貸条件としての空きを保証するものではありません。 / ※掲載情報の誤りや変更、未掲載情報の掲載依頼がございましたら、お手数ですが お問い合わせフォームよりご連絡ください。
近隣の条件が近い物件
掲載物件数:2,383件
4,329区画




































