NEW

第3東ビル(第三東ビル) 2階212

秋葉原駅昭和通り口から1分。1階に銀行ATMあり。
最終情報更新日:2026/04/16
ビルコード: 1310100301
第三東ビル外観① 第三東ビル外観①
第三東ビル外観② 第三東ビル外観②
1階部分 1階部分
ビルエントランス ビルエントランス
エントランスホール① エントランスホール①
エントランスホール② エントランスホール②
エレベーター エレベーター
エントランスホール③ エントランスホール③
エントランスホール④ エントランスホール④
駐車場への通路 駐車場への通路
自販機 自販機
ビル周辺風景① ビル周辺風景①
ビル周辺風景② ビル周辺風景②
第三東ビル外観①
第三東ビル外観②
1階部分
ビルエントランス
エントランスホール①
エントランスホール②
エレベーター
エントランスホール③
エントランスホール④
駐車場への通路
自販機
ビル周辺風景①
ビル周辺風景②
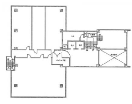
第3東ビル(第三東ビル) 2階212 平面図
建物詳細

第三東ビル(だいさんあずまビル・千代田区神田平河町)は、秋葉原駅昭和通り口から徒歩1分の賃貸オフィスビルです。

規模は地上11階建て、竣工は1969年11月です。

最新の空室状況や賃料・賃貸条件など、お気軽にお問合せ下さい。

賃貸条件

所在階 2階
用途 事務所
面積 16.0坪 / 52.89m²
賃料 208,000円
共益費 48,000円
坪単価 16,000円/坪 (共益費込)
預託金 8ヶ月
入居時期 2026年10月上旬

物件概要

所在地 東京都千代田区神田平河町1
交通
  • JR山手線 秋葉原駅 1分
  • 東京メトロ日比谷線 秋葉原駅 1分
規模 地上11階 / 地下1階
竣工 1969年11月
構造 鉄骨鉄筋コンクリート(SRC造)
基準階坪数 123.0坪
延床面積 5,103.1㎡

物件詳細・設備

エレベーター 2基
駐車場 あり 13台
情報通信設備 光ファイバー(MDFまで)
空調 個別空調
セキュリティ 機械警備
建物設備 1階に銀行ATM
地下フロアは飲食街

第3東ビル(第三東ビル)の空室一覧

↓ 募集区画クリックで詳細情報をご覧いただけます

募集区画 面積 用途 賃料+共益費 坪単価(共益費込) 入居時期 平面図 お気に入り
NEW 2階212 16.0坪 事務所 256,000円 16,000円/坪 2026年10月上旬

※表示金額はすべて「税抜き表示」となっています。 / ※間取図は現況を優先させていただきます。 / ※駐車場は建物設備としての有無のため、有の場合でも賃貸条件としての空きを保証するものではありません。 / ※掲載情報の誤りや変更、未掲載情報の掲載依頼がございましたら、お手数ですが お問い合わせフォーム よりご連絡ください。

掲載物件数:2,338件  4,222区画

お気に入りに追加