サンブリヂ小川町ビル 3階

各所に意匠を凝らした個性あるデザイン・ビルディング
最終情報更新日:2025/10/02
ビルコード:1310101140
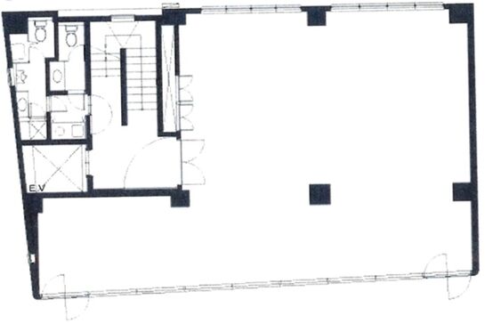
サンブリヂ小川町ビル 3階 平面図
建物詳細

サンブリヂ小川町ビル(千代田区神田小川町2丁目2)は、最寄りの「小川町」駅より徒歩1分の賃貸オフィスビルです。

建物は地上6階地下1階建て、竣工は1962年1月、ミラーガラスの外観デザインが特徴の建物です。エレベーターは1基設置されています。

基準階貸室面積は41坪です。

最新の募集状況や賃料・賃貸条件など、お気軽にお問合せ下さい。

賃貸条件

所在階3階
用途事務所
面積41.0坪 / 135.53m²
賃料相談
共益費相談
坪単価-
預託金相談
入居時期即入居
その他費用償却: なし
礼金: なし
天井高2,470mm
トイレ男女別
床仕様OAフロア

物件概要

所在地東京都千代田区神田小川町2丁目2
交通
  • 都営新宿線 小川町駅 1分
  • 東京メトロ千代田線 新御茶ノ水駅 1分
規模地上6階 / 地下1階
竣工1962年1月
構造鉄筋コンクリート(RC造)
基準階坪数41.0坪

物件詳細・設備

エレベーター1基
駐車場なし
情報通信設備光ファイバー
空調個別空調
セキュリティ機械警備
リニューアル履歴2015年 リニューアル済

サンブリヂ小川町ビルの空室一覧

↓ 募集区画クリックで詳細情報をご覧いただけます

募集区画面積用途賃料+共益費坪単価(共益費込)入居時期平面図お気に入り
3階41.0坪事務所相談-即入居
2階35.0坪事務所相談-即入居

※表⽰⾦額は、敷⾦・保証⾦などの預かり⾦を除き、別途消費税がかかります。 / ※間取図は現況を優先させていただきます。 / ※駐車場は建物設備としての有無のため、有の場合でも賃貸条件としての空きを保証するものではありません。 / ※掲載情報の誤りや変更、未掲載情報の掲載依頼がございましたら、お手数ですが お問い合わせフォームよりご連絡ください。

近隣の条件が近い物件

東京都千代田区神田小川町2丁目10

地上6階建て

36.0坪 〜 43.0坪

東京メトロ千代田線 新御茶ノ水駅 1分

東京都千代田区内神田1丁目15-11

地上8階建て

42.13坪

JR山手線 神田駅 6分

東京都千代田区神田錦町2丁目7-6

地上6階建て

39.91坪

東京メトロ東西線 竹橋駅 5分

東京都千代田区内神田1丁目9-12

地上9階建て

42.58坪

東京メトロ丸ノ内線 大手町駅 5分

東京都千代田区神田司町2丁目6-1

地上9階 / 地下1階

43.5坪

JR山手線 神田駅 6分

東京都千代田区内神田2丁目5-1

地上6階 / 地下2階

41.36坪

JR山手線 神田駅 4分

東京都千代田区神田神保町1丁目22-2

地上11階建て

39.44坪

東京メトロ半蔵門線 神保町駅 3分

東京都千代田区神田錦町1丁目17-1

地上7階 / 地下1階

43.05坪

東京メトロ丸ノ内線 大手町駅 4分

東京都千代田区神田須田町2丁目1-1

地上8階 / 地下1階

39.98坪

JR山手線 神田駅 3分

東京都千代田区神田神保町1丁目11-1

地上11階 / 地下2階

42.5坪

東京メトロ半蔵門線 神保町駅 1分

東京都千代田区神田須田町2丁目3-16

地上10階 / 地下1階

41.66坪

都営新宿線 岩本町駅 2分

東京都千代田区神田小川町2丁目5

地上7階 / 地下1階

36.13坪

都営新宿線 小川町駅 2分

東京都千代田区神田須田町1丁目34-3

地上9階建て

38.77坪

東京メトロ銀座線 神田駅 1分

東京都千代田区神田須田町1丁目4

地上9階建て

37.68坪

東京メトロ丸ノ内線 淡路町駅 1分

東京都千代田区神田須田町1丁目24-6

地上11階建て

43.06坪

東京メトロ銀座線 神田駅 1分

東京都千代田区神田駿河台2丁目3-12

地上7階 / 地下2階

41.53坪

JR中央線(快速) 御茶ノ水駅 5分

掲載物件数:2,258件  4,145区画

お気に入りに追加