NEW

グランファースト神田紺屋町 3階

ラグジュアリーなセットアップオフィス
最終情報更新日:2026/02/18
ビルコード: 1310100907
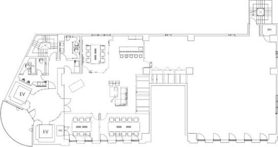
グランファースト神田紺屋町 3階 平面図
建物詳細

グランファースト神田紺屋町(東京都千代田区神田紺屋町15)は、最寄りの「神田」駅から徒歩約4分の地上10階・地下1階建ての賃貸オフィスビルです。ビルの竣工は1993年4月、エレベーターは2基ございます。2022年11月に外観・エントランスのリニューアルが完了、各階貸室内については2018年1月から順次リニューアルが行われ、直近のリニューアルフロアではアフターコロナに対応したこだわりの上質感あふれるオフィスに仕上がっております。

最新の空室状況や賃料・賃貸条件などにつきましては、お気軽にお問合せ下さい。

賃貸条件

所在階 3階 内装付
用途 事務所
面積 122.52坪 / 405.02m²
賃料 相談
共益費 賃料に含む
坪単価 -
預託金 相談
入居時期 2026年9月上旬
その他費用 償却: なし
礼金: なし
更新料・再契約料: なし
天井高 2,600mm
トイレ 男女別
床仕様 OAフロア

物件概要

所在地 東京都千代田区神田紺屋町15
交通
  • JR山手線 神田駅 4分
  • 東京メトロ銀座線 神田駅 5分
  • 都営新宿線 岩本町駅 5分
規模 地上10階 / 地下1階
竣工 1993年4月
耐震基準 新耐震基準
構造 鉄骨鉄筋コンクリート(SRC造)
基準階坪数 110.35坪
基準階天井高 2,600mm

物件詳細・設備

エレベーター 2基
駐車場 あり 機械式
情報通信設備 光ファイバー
空調 個別空調
セキュリティ 機械警備
建物設備 2022年11月 CASBEE不動産評価認証 Sランク取得
リニューアル履歴 2022年11月 外観・エントランスリニューアル済

グランファースト神田紺屋町の空室一覧

↓ 募集区画クリックで詳細情報をご覧いただけます

募集区画 面積 用途 賃料+共益費 坪単価(共益費込) 入居時期 平面図 お気に入り
NEW 6階 内装付 166.73坪 事務所 相談 - 2026年9月上旬
NEW 3階 内装付 122.52坪 事務所 相談 - 2026年9月上旬
1階 内装付 23.27坪 事務所、店舗 相談 - 2026年6月上旬

近隣の条件が近い物件

東京都千代田区神田鍛冶町3-4

地上9階 / 地下1階

124.79坪

JR山手線 神田駅 2分

東京都千代田区神田須田町2丁目7-3

地上9階 / 地下1階

124.85坪

都営新宿線 岩本町駅 1分

東京都千代田区岩本町2丁目12-5

地上9階建て

114.49坪

都営新宿線 岩本町駅 3分

東京都千代田区岩本町3丁目11-6

地上8階建て

131.25坪

都営新宿線 岩本町駅 3分

東京都文京区本郷3丁目18-14

地上8階 / 地下1階

120.08坪

都営大江戸線 本郷三丁目駅 5分

東京都墨田区両国1丁目3-12

地上6階建て

118.2坪

JR中央・総武線 両国駅 8分

東京都中央区東日本橋1丁目5-6

地上8階 / 地下2階

115.68坪

都営浅草線 東日本橋駅 2分

東京都千代田区外神田1丁目18-13

地上31階 / 地下2階

114.24坪

JR山手線 秋葉原駅 1分

東京都中央区新富1丁目14-1

地上8階建て

120.71坪

JR京葉線 八丁堀駅 3分

東京都中央区日本橋小伝馬町7-2

地上10階 / 地下1階

110.07坪

東京メトロ日比谷線 小伝馬町駅 1分

東京都千代田区神田須田町2丁目7-2

地上10階 / 地下1階

110.24坪

都営新宿線 岩本町駅 1分

東京都中央区日本橋馬喰町1丁目11-10

地上11階建て

113.12坪

総武線(快速) 馬喰町駅 1分

東京都千代田区丸の内3丁目4-2

地上11階 / 地下2階

118.83坪

JR山手線 有楽町駅 2分

東京都中央区日本橋馬喰町1丁目12-3

地上10階建て

113.12坪

総武線(快速) 馬喰町駅 1分

※表示金額はすべて「税抜き表示」となっています。 / ※間取図は現況を優先させていただきます。 / ※駐車場は建物設備としての有無のため、有の場合でも賃貸条件としての空きを保証するものではありません。 / ※掲載情報の誤りや変更、未掲載情報の掲載依頼がございましたら、お手数ですが お問い合わせフォーム よりご連絡ください。

掲載物件数:2,413件  4,390区画

お気に入りに追加