賃貸条件
| 所在階 | 3階 |
|---|---|
| 用途 | 事務所 |
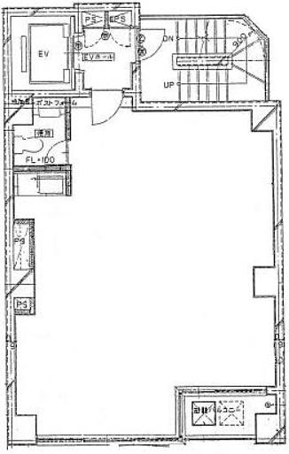
| 面積 | 18.19坪 / 60.13m² |
| 賃料 | 254,660円 |
| 共益費 | 賃料に含む |
| 坪単価 | 14,000円/坪 (共益費込) |
| 預託金 | 6ヶ月 |
| 入居時期 | 2026年5月上旬 |
| その他費用 |
償却: 2ヶ月
礼金: なし 更新料・再契約料: 新賃料1ヶ月 |
| 天井高 | 2,375mm |
| トイレ | 男女共用 |
| 床仕様 | タイルカーペット |
物件概要
| 所在地 | 東京都中央区築地7丁目11-8 |
|---|---|
| 交通 |
|
| 規模 | 地上7階建て |
| 竣工 | 1989年 |
| 耐震基準 | 新耐震基準 |
| 構造 | 鉄筋コンクリート(RC造) |
物件詳細・設備
| エレベーター | 1基 |
|---|---|
| 駐車場 | なし |
| 空調 | 個別空調 |
池田ビル(中央区築地7丁目)の空室一覧
↓ 募集区画クリックで詳細情報をご覧いただけます
| 募集区画 | 面積 | 用途 | 賃料+共益費 | 坪単価(共益費込) | 入居時期 | 平面図 | お気に入り |
|---|---|---|---|---|---|---|---|
| NEW 3階 | 18.19坪 | 事務所 | 254,660円 | 14,000円/坪 | 2026年5月上旬 |
|
※表示金額はすべて「税抜き表示」となっています。 / ※間取図は現況を優先させていただきます。 / ※駐車場は建物設備としての有無のため、有の場合でも賃貸条件としての空きを保証するものではありません。 / ※掲載情報の誤りや変更、未掲載情報の掲載依頼がございましたら、お手数ですが お問い合わせフォーム よりご連絡ください。
掲載物件数:2,347件
4,246区画