NEW

GRAN PASEO大井町 1階

最終情報更新日:2026/04/09
ビルコード: 1310900534
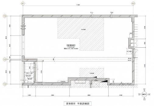
GRAN PASEO大井町 1階 平面図

賃貸条件

所在階 1階
用途 事務所、店舗
面積 22.23坪 / 73.48m²
賃料 600,000円
共益費 賃料に含む
坪単価 26,991円/坪 (共益費込)
預託金 10ヶ月
入居時期 即入居
その他費用 償却: なし
礼金: 1ヶ月
更新料・再契約料: 相談
その他 スケルトン

物件概要

所在地 東京都品川区東大井6丁目4-5
交通
  • JR京浜東北線 大井町駅 4分
  • 京急本線 立会川駅 11分
規模 地上4階建て
竣工 2026年1月
耐震基準 新耐震基準
構造 鉄筋コンクリート(RC造)

物件詳細・設備

エレベーター 1基

GRAN PASEO大井町の空室一覧

↓ 募集区画クリックで詳細情報をご覧いただけます

募集区画 面積 用途 賃料+共益費 坪単価(共益費込) 入居時期 平面図 お気に入り
NEW 1階 22.23坪 事務所、店舗 600,000円 26,991円/坪 即入居

※表示金額はすべて「税抜き表示」となっています。 / ※間取図は現況を優先させていただきます。 / ※駐車場は建物設備としての有無のため、有の場合でも賃貸条件としての空きを保証するものではありません。 / ※掲載情報の誤りや変更、未掲載情報の掲載依頼がございましたら、お手数ですが お問い合わせフォーム よりご連絡ください。

掲載物件数:2,344件  4,202区画

お気に入りに追加