NEW

ORIENT Bldg 一棟

約50坪のリノベーション済一棟セットアップオフィス
最終情報更新日:2026/03/24
ビルコード: 1310500362
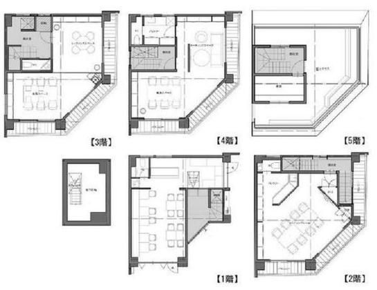
ORIENT Bldg 一棟 平面図
担当者からのコメント
2026年2月、一棟フルリニューアル。水まわりや什器・備品もすべて新調されています。外観や室内は洗練されたデザインとなっており、屋上にはウッドデッキも備えられております。 一棟デザイナーズオフィスをお探しの企業様におすすめのオフィス物件です。 お気軽にお問合せください。

賃貸条件

所在階 1階〜5階 内装付
用途 事務所
面積 49.64坪 / 164.1m²
賃料 1,000,000円
共益費 賃料に含む
坪単価 20,145円/坪 (共益費込)
預託金 5ヶ月
入居時期 即入居
その他費用 償却: 1ヶ月
礼金: なし
更新料・再契約料: 新賃料1ヶ月
トイレ 男女別
その他 【貸室面積】1階40.00㎡、2階39.50㎡、3階36.70㎡、4階42.00㎡、5階5.90㎡ 【床仕様】1階モルタル、2階タイルカーペット、3階・4階OAフロア、5階塩ビシート

物件概要

所在地 東京都文京区千石4丁目21-8
交通
  • JR山手線 巣鴨駅 5分
  • 都営三田線 巣鴨駅 5分
  • 都営三田線 千石駅 10分
規模 地上5階建て
竣工 1977年6月
構造 鉄筋コンクリート(RC造)

物件詳細・設備

エレベーター なし
空調 個別空調
セキュリティ エントランスセキュリティ
リニューアル履歴 2026年2月 大規模リニューアル

ORIENT Bldgの空室一覧

↓ 募集区画クリックで詳細情報をご覧いただけます

募集区画 面積 用途 賃料+共益費 坪単価(共益費込) 入居時期 平面図 お気に入り
NEW 一棟 内装付 49.64坪 事務所 1,000,000円 20,145円/坪 即入居

近隣の条件が近い物件

東京都豊島区東池袋3丁目22-17

地上7階 / 地下1階

51.35坪

東京メトロ有楽町線 東池袋駅 8分

東京都文京区小石川5丁目36-5

地上7階 / 地下1階

53.4坪

東京メトロ丸ノ内線 茗荷谷駅 6分

東京都豊島区南池袋2丁目17-7

地上13階建て

50.12坪

JR山手線 池袋駅 5分

東京都豊島区駒込3丁目3-17

地上7階 / 地下1階

57.15坪

JR山手線 駒込駅 2分

東京都文京区大塚5丁目7-12

地上10階建て

41.26坪

東京メトロ丸ノ内線 新大塚駅 1分

東京都文京区本郷5丁目33-10

地上6階 / 地下1階

48.87坪

都営大江戸線 春日駅 3分

東京都豊島区目白3丁目4-18

地上5階 / 地下1階

48.57坪

JR山手線 目白駅 1分

東京都豊島区東池袋1丁目40-2

地上7階 / 地下2階

45.0坪

JR山手線 池袋駅 3分

東京都豊島区南大塚3丁目11-9

地上7階建て

36.01坪 〜 37.65坪

東京メトロ丸ノ内線 新大塚駅 4分

東京都豊島区南池袋2丁目35-4

地上8階 / 地下1階

44.3坪

東京メトロ有楽町線 東池袋駅 4分

東京都文京区本駒込2丁目28-8

地上23階 / 地下3階

36.95坪

都営三田線 千石駅 3分

東京都豊島区西池袋1丁目18-6

地上7階建て

46.25坪

JR山手線 池袋駅 4分

東京都新宿区新小川町6-36

地上14階 / 地下1階

53.05坪

JR中央・総武線 飯田橋駅 8分

東京都豊島区南池袋2丁目5-2

地上5階建て

43.48坪

東京メトロ有楽町線 東池袋駅 5分

東京都文京区関口1丁目44-4

地上8階建て

45.14坪

東京メトロ有楽町線 江戸川橋駅 4分

東京都豊島区西池袋2丁目29-19

地上11階 / 地下1階

53.7坪

JR山手線 池袋駅 3分

※表示金額はすべて「税抜き表示」となっています。 / ※間取図は現況を優先させていただきます。 / ※駐車場は建物設備としての有無のため、有の場合でも賃貸条件としての空きを保証するものではありません。 / ※掲載情報の誤りや変更、未掲載情報の掲載依頼がございましたら、お手数ですが お問い合わせフォーム よりご連絡ください。

掲載物件数:2,359件  4,256区画

お気に入りに追加