NEW

フォーライフオフィス東神田ビル 8階

最終情報更新日:2026/03/13
ビルコード: 1310103598
※外装リニューアル工事中 ※外装リニューアル工事中
※外装リニューアル工事中
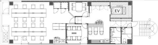
フォーライフオフィス東神田ビル 8階 平面図

賃貸条件

所在階 8階 内装付
用途 事務所
面積 29.46坪 / 97.38m²
賃料 765,960円
共益費 賃料に含む
坪単価 26,000円/坪 (共益費込)
預託金 なし
入居時期 2026年8月上旬
その他費用 償却: なし
礼金: なし
更新料・再契約料: なし
トイレ 男女別
床仕様 OAフロア

物件概要

所在地 東京都千代田区東神田2丁目10-16
交通
  • 総武線(快速) 馬喰町駅 4分
  • 都営新宿線 馬喰横山駅 4分
  • 東京メトロ日比谷線 秋葉原駅 9分
  • JR山手線 秋葉原駅 10分
規模 地上9階建て
竣工 1992年6月
耐震基準 新耐震基準
構造 鉄骨(S造)
基準階坪数 29.46坪

物件詳細・設備

エレベーター 1基
駐車場 なし
情報通信設備 光ファイバー
空調 個別空調
セキュリティ 機械警備
リニューアル履歴 2026年3月 大規模リニューアル予定

フォーライフオフィス東神田ビルの空室一覧

↓ 募集区画クリックで詳細情報をご覧いただけます

募集区画 面積 用途 賃料+共益費 坪単価(共益費込) 入居時期 平面図 お気に入り
NEW 8階 内装付 29.46坪 事務所 765,960円 26,000円/坪 2026年8月上旬
NEW 6階 内装付 29.46坪 事務所 765,960円 26,000円/坪 2026年5月上旬

近隣の条件が近い物件

東京都千代田区岩本町3丁目11-4

地上9階建て

30.65坪

東京メトロ日比谷線 秋葉原駅 3分

東京都台東区浅草橋1丁目34-10

地上8階建て

29.68坪

JR中央・総武線 浅草橋駅 3分

東京都中央区日本橋大伝馬町12-9

地上6階 / 地下1階

30.08坪

総武線(快速) 馬喰町駅 4分

東京都千代田区岩本町1丁目7-6

地上6階建て

27.85坪

東京メトロ日比谷線 小伝馬町駅 3分

東京都千代田区岩本町3丁目1-9

地上9階 / 地下1階

31.78坪

都営新宿線 岩本町駅 2分

東京都中央区東日本橋2丁目2-10

地上6階 / 地下1階

26.59坪 〜 26.73坪

都営浅草線 東日本橋駅 1分

東京都千代田区神田須田町2丁目19-11

地上12階建て

30.06坪

都営新宿線 岩本町駅 3分

東京都中央区日本橋大伝馬町17-4

地上6階建て

32.36坪

東京メトロ日比谷線 小伝馬町駅 5分

東京都千代田区岩本町2丁目11-3

地上8階 / 地下1階

25.82坪

都営新宿線 岩本町駅 4分

東京都千代田区岩本町3丁目9-4

地上7階建て

25.43坪

都営新宿線 岩本町駅 2分

東京都千代田区神田淡路町2丁目105

地上15階 / 地下2階

29.69坪 〜 30.51坪

東京メトロ千代田線 新御茶ノ水駅 2分

東京都中央区日本橋本町3丁目1-11

地上8階 / 地下1階

27.37坪

東京メトロ銀座線 三越前駅 2分

東京都中央区日本橋浜町3丁目23-1

地上8階 / 地下3階

27.9坪

都営新宿線 浜町駅 2分

東京都千代田区神田司町2丁目10-4

地上10階建て

26.98坪

東京メトロ丸ノ内線 淡路町駅 2分

東京都中央区日本橋小舟町11丁目8

地上10階建て

25.98坪

総武線(快速) 新日本橋駅 6分

※表示金額はすべて「税抜き表示」となっています。 / ※間取図は現況を優先させていただきます。 / ※駐車場は建物設備としての有無のため、有の場合でも賃貸条件としての空きを保証するものではありません。 / ※掲載情報の誤りや変更、未掲載情報の掲載依頼がございましたら、お手数ですが お問い合わせフォーム よりご連絡ください。

掲載物件数:2,364件  4,297区画

お気に入りに追加