日本生命東八重洲ビル 5階

最終情報更新日:2026/03/23
ビルコード: 1310204127
※リニューアル中 ※リニューアル中
※リニューアル中
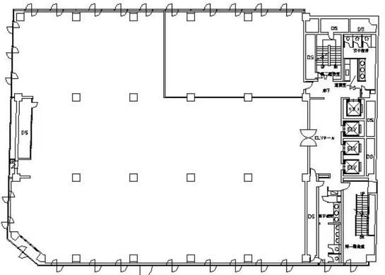
日本生命東八重洲ビル 5階 平面図

賃貸条件

所在階 5階
用途 事務所
面積 254.2坪 / 840.33m²
賃料 相談
共益費 相談
坪単価 -
預託金 12ヶ月
入居時期 2027年1月上旬
天井高 2,500mm
トイレ 男女別
床仕様 OAフロア

物件概要

所在地 東京都中央区八丁堀2丁目6-1
交通
  • 東京メトロ日比谷線 八丁堀駅 3分
  • JR京葉線 八丁堀駅 4分
  • JR山手線 東京駅 10分
規模 地上9階 / 地下5階
竣工 1964年
構造 鉄骨鉄筋コンクリート(SRC造)
基準階坪数 255.91坪
基準階天井高 2,500mm

物件詳細・設備

エレベーター 4基
駐車場 あり 機械式15台 身障者用1台
情報通信設備 光ファイバー
空調 個別空調
セキュリティ 有人管理
リニューアル履歴 2027年1月 全面リニューアル完了予定

日本生命東八重洲ビルの空室一覧

↓ 募集区画クリックで詳細情報をご覧いただけます

募集区画 面積 用途 賃料+共益費 坪単価(共益費込) 入居時期 平面図 お気に入り
9階 254.2坪 事務所 相談 - 2027年1月上旬
8階 254.2坪 事務所 相談 - 2027年1月上旬
7階 254.2坪 事務所 相談 - 2027年1月上旬
6階 254.2坪 事務所 相談 - 2027年1月上旬
5階 254.2坪 事務所 相談 - 2027年1月上旬
4階 254.2坪 事務所 相談 - 2027年1月上旬
3階 254.2坪 事務所 相談 - 2027年1月上旬
2階 254.2坪 事務所 相談 - 2027年1月上旬
1階 101.51坪 事務所 相談 - 2027年1月上旬
NEW 地下2階 74.99坪 事務所 相談 - 2027年2月上旬

近隣の条件が近い物件

東京都中央区京橋1丁目18-1

地上13階 / 地下2階

253.7坪 〜 263.3坪

都営浅草線 宝町駅 4分

東京都中央区日本橋本町2丁目7-1(予定)

地上17階 / 地下1階

255.63坪

東京メトロ銀座線 三越前駅 6分

東京都中央区明石町8-1

地上51階 / 地下4階

249.23坪

東京メトロ日比谷線 築地駅 7分

東京都港区新橋6丁目17-15

地上8階 / 地下1階

251.86坪

都営三田線 御成門駅 1分

東京都千代田区九段南2丁目1-30

地上12階 / 地下2階

254.16坪

東京メトロ東西線 九段下駅 8分

東京都千代田区三番町5-7

地上7階 / 地下1階

254.25坪

東京メトロ半蔵門線 半蔵門駅 3分

東京都港区東新橋1丁目9-1

地上37階 / 地下4階

260.2坪

都営大江戸線 汐留駅 1分

東京都中央区京橋2丁目2-1

地上32階 / 地下3階

269.45坪

東京メトロ銀座線 京橋駅 1分

東京都江東区越中島3丁目5-25

地上7階 / 地下1階

245.01坪 〜 249.67坪

東京メトロ東西線 門前仲町駅 15分

東京都港区芝公園2丁目4-1

地上14階 / 地下1階

256.72坪

都営浅草線 大門駅 2分

東京都中央区銀座6丁目18-2

地上17階 / 地下5階

271.21坪

東京メトロ日比谷線 東銀座駅 3分

東京都中央区月島1丁目15-7

地上13階 / 地下2階

272.42坪

東京メトロ有楽町線 月島駅 4分

※表示金額はすべて「税抜き表示」となっています。 / ※間取図は現況を優先させていただきます。 / ※駐車場は建物設備としての有無のため、有の場合でも賃貸条件としての空きを保証するものではありません。 / ※掲載情報の誤りや変更、未掲載情報の掲載依頼がございましたら、お手数ですが お問い合わせフォーム よりご連絡ください。

掲載物件数:2,343件  4,222区画

お気に入りに追加