NEW

秋葉原槇町ビル 8階

最終情報更新日:2026/02/09
ビルコード: 1310103595
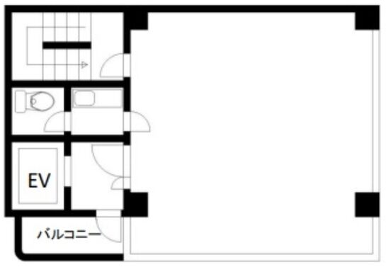
秋葉原槇町ビル 8階 平面図

賃貸条件

所在階 8階
用途 事務所
面積 17.82坪 / 58.9m²
賃料 267,300円
共益費 賃料に含む
坪単価 15,000円/坪 (共益費込)
預託金 8ヶ月
入居時期 2026年5月上旬
その他費用 償却: なし
礼金: なし
更新料・再契約料: 1ヶ月
トイレ 男女共用
床仕様 タイルカーペット

物件概要

所在地 東京都千代田区外神田3丁目3-3
交通
  • 東京メトロ銀座線 末広町駅 3分
規模 地上9階建て
竣工 1989年6月
耐震基準 新耐震基準
構造 鉄骨鉄筋コンクリート(SRC造)

物件詳細・設備

エレベーター 1基
駐車場 あり 平置き駐車場
空調 個別空調
セキュリティ 機械警備

秋葉原槇町ビルの空室一覧

↓ 募集区画クリックで詳細情報をご覧いただけます

募集区画 面積 用途 賃料+共益費 坪単価(共益費込) 入居時期 平面図 お気に入り
NEW 8階 17.82坪 事務所 267,300円 15,000円/坪 2026年5月上旬

近隣の条件が近い物件

東京都文京区湯島1丁目9-3

地上5階 / 地下1階

18.65坪

JR中央・総武線 御茶ノ水駅 5分

東京都文京区湯島2丁目9-10

地上5階建て

18.8坪

東京メトロ千代田線 湯島駅 7分

東京都千代田区神田須田町1丁目11

地上6階 / 地下1階

17.5坪

東京メトロ丸ノ内線 淡路町駅 3分

東京都千代田区神田駿河台2丁目10-6

地上7階 / 地下1階

17.86坪

JR中央線(快速) 御茶ノ水駅 2分

東京都千代田区神田須田町1丁目7-8

地上12階建て

19.3坪

東京メトロ銀座線 神田駅 2分

東京都文京区本郷3丁目3-11

地上8階建て

19.02坪

JR中央・総武線 御茶ノ水駅 3分

東京都千代田区神田岩本町1-23

地上14階 / 地下1階

16.95坪

都営新宿線 岩本町駅 1分

東京都千代田区神田駿河台3丁目5-15

地上7階建て

17.5坪

東京メトロ千代田線 新御茶ノ水駅 2分

東京都千代田区神田和泉町1丁目9-19

地上5階建て

18.84坪

東京メトロ日比谷線 秋葉原駅 4分

東京都千代田区神田東松下町13

地上9階 / 地下1階

17.38坪

都営新宿線 岩本町駅 3分

東京都文京区湯島3丁目31-1

地上9階建て

19.53坪

東京メトロ千代田線 湯島駅 2分

東京都千代田区岩本町3丁目5-14

地上9階 / 地下1階

17.3坪

都営新宿線 岩本町駅 3分

東京都千代田区神田猿楽町2丁目2-6

地上7階建て

18.05坪

東京メトロ半蔵門線 神保町駅 5分

東京都千代田区神田富山町17-3

地上9階建て

16.2坪

JR山手線 神田駅 3分

東京都千代田区神田多町2丁目9-6

地上8階建て

20.0坪

東京メトロ丸ノ内線 淡路町駅 3分

東京都文京区湯島4丁目1-18

地上9階 / 地下2階

19.29坪

都営大江戸線 本郷三丁目駅 4分

東京都文京区湯島2丁目2-16

地上8階建て

21.95坪

JR中央・総武線 御茶ノ水駅 7分

東京都千代田区神田佐久間町3丁目37

地上6階 / 地下1階

20.0坪

東京メトロ日比谷線 秋葉原駅 4分

※表示金額はすべて「税抜き表示」となっています。 / ※間取図は現況を優先させていただきます。 / ※駐車場は建物設備としての有無のため、有の場合でも賃貸条件としての空きを保証するものではありません。 / ※掲載情報の誤りや変更、未掲載情報の掲載依頼がございましたら、お手数ですが お問い合わせフォーム よりご連絡ください。

掲載物件数:2,418件  4,384区画

お気に入りに追加