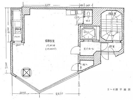
黒江屋八丁堀ビル 3階

最終情報更新日:2026/02/19
ビルコード: 1310204111
黒江屋八丁堀ビル 3階 平面図

賃貸条件

所在階 3階
用途 事務所
面積 17.85坪 / 59.0m²
賃料 169,575円
共益費 62,475円
坪単価 13,000円/坪 (共益費込)
預託金 6ヶ月
入居時期 即入居
その他費用 償却: なし
礼金: なし
更新料・再契約料: なし
トイレ 男女共用

物件概要

所在地 東京都中央区八丁堀3丁目18-7
交通
  • 東京メトロ日比谷線 八丁堀駅 2分
  • 都営浅草線 宝町駅 5分
  • 東京メトロ東西線 茅場町駅 7分
規模 地上6階 / 地下1階
竣工 1980年7月
構造 鉄筋コンクリート(RC造)

物件詳細・設備

エレベーター 1基
情報通信設備 光ファイバー
空調 個別空調
セキュリティ 機械警備

黒江屋八丁堀ビルの空室一覧

↓ 募集区画クリックで詳細情報をご覧いただけます

募集区画 面積 用途 賃料+共益費 坪単価(共益費込) 入居時期 平面図 お気に入り
5階 17.85坪 事務所 232,050円 13,000円/坪 即入居
3階 17.85坪 事務所 232,050円 13,000円/坪 即入居
2階 17.85坪 事務所 232,050円 13,000円/坪 即入居

近隣の条件が近い物件

東京都中央区八丁堀2丁目19-6

地上8階 / 地下1階

16.8坪

東京メトロ日比谷線 八丁堀駅 2分

東京都中央区八丁堀4丁目11-3

地上7階建て

15.38坪 〜 18.94坪

東京メトロ日比谷線 八丁堀駅 1分

東京都中央区八丁堀4丁目10-8

地上10階建て

17.54坪

東京メトロ日比谷線 八丁堀駅 1分

東京都中央区銀座1丁目18-6

地上9階 / 地下1階

17.5坪

東京メトロ銀座線 京橋駅 5分

東京都中央区八丁堀2丁目22-11

地上6階建て

15.21坪

JR京葉線 八丁堀駅 1分

東京都中央区日本橋茅場町3丁目4-1

地上8階建て

16.5坪

東京メトロ日比谷線 茅場町駅 3分

東京都中央区日本橋茅場町2丁目8-7

地上8階建て

17.24坪

東京メトロ日比谷線 茅場町駅 2分

東京都中央区八丁堀4丁目11-5

地上6階 / 地下1階

21.33坪

東京メトロ日比谷線 八丁堀駅 1分

東京都中央区八丁堀4丁目14-7

地上9階建て

15.07坪

東京メトロ日比谷線 八丁堀駅 4分

東京都中央区京橋2丁目12-9

地上12階建て

15.35坪

都営浅草線 宝町駅 1分

東京都中央区銀座2丁目8-5

地上9階 / 地下1階

18.62坪

東京メトロ有楽町線 銀座一丁目駅 1分

東京都中央区日本橋2丁目16-6

地上10階建て

19.91坪

東京メトロ銀座線 日本橋駅 2分

東京都中央区新川2丁目18-10

地上10階建て

20.82坪

JR京葉線 八丁堀駅 3分

東京都中央区築地1丁目12-22

地上13階建て

19.17坪

東京メトロ日比谷線 東銀座駅 3分

東京都中央区京橋2丁目7-14

地上8階 / 地下1階

21.52坪

東京メトロ銀座線 京橋駅 2分

東京都中央区銀座2丁目16-7

地上5階 / 地下4階

15.0坪

東京メトロ有楽町線 新富町駅 3分

※表示金額はすべて「税抜き表示」となっています。 / ※間取図は現況を優先させていただきます。 / ※駐車場は建物設備としての有無のため、有の場合でも賃貸条件としての空きを保証するものではありません。 / ※掲載情報の誤りや変更、未掲載情報の掲載依頼がございましたら、お手数ですが お問い合わせフォーム よりご連絡ください。

掲載物件数:2,412件  4,390区画

お気に入りに追加