ACN三軒茶屋ビル 3階

最終情報更新日:2026/03/03
ビルコード: 1311200170
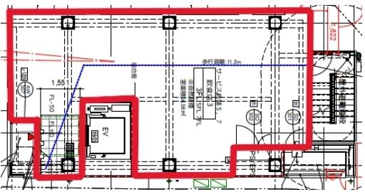
ACN三軒茶屋ビル 3階 平面図

賃貸条件

所在階 3階
用途 店舗
面積 19.52坪 / 64.52m²
賃料 相談
共益費 賃料に含む
坪単価 -
預託金 8ヶ月
入居時期 即入居
その他費用 償却: 1ヶ月
更新料・再契約料: 1ヶ月
天井高 2,850mm
その他 最適用途:レストラン・バー(その他業種も可)

物件概要

所在地 東京都世田谷区太子堂2丁目17-10
交通
  • 東急世田谷線 三軒茶屋駅 3分
  • 東急田園都市線 渋谷駅 10分
規模 地上8階建て
竣工 2025年10月
耐震基準 新耐震基準
構造 鉄骨(S造)

物件詳細・設備

エレベーター 1基
情報通信設備 光ファイバー

ACN三軒茶屋ビルの空室一覧

↓ 募集区画クリックで詳細情報をご覧いただけます

募集区画 面積 用途 賃料+共益費 坪単価(共益費込) 入居時期 平面図 お気に入り
8階 19.52坪 店舗 相談 - 即入居
7階 16.29坪 店舗 相談 - 即入居
6階 16.29坪 店舗 相談 - 即入居
5階 16.29坪 店舗 相談 - 即入居
4階 16.29坪 店舗 相談 - 即入居
3階 19.52坪 店舗 相談 - 即入居

近隣の条件が近い物件

東京都世田谷区太子堂1丁目4-33

地上8階建て

23.81坪

東急田園都市線 三軒茶屋駅 8分

東京都目黒区青葉台4丁目7-4

地上4階 / 地下1階

18.4坪 〜 18.59坪

京王井の頭線 神泉駅 8分

東京都渋谷区円山町23-2

地上6階建て

19.98坪

京王井の頭線 神泉駅 1分

東京都目黒区上目黒2丁目16-1

地上4階 / 地下1階

18.92坪

東急東横線 中目黒駅 3分

東京都渋谷区南平台町15-11

地上9階 / 地下1階

18.34坪

京王井の頭線 神泉駅 5分

東京都渋谷区道玄坂1丁目19-12

地上11階建て

20.74坪

JR山手線 渋谷駅 5分

東京都渋谷区松濤1丁目29-2

地上8階 / 地下1階

18.38坪

京王井の頭線 神泉駅 5分

東京都渋谷区神泉町21-3

地上7階建て

22.61坪

JR山手線 渋谷駅 10分

※表示金額はすべて「税抜き表示」となっています。 / ※間取図は現況を優先させていただきます。 / ※駐車場は建物設備としての有無のため、有の場合でも賃貸条件としての空きを保証するものではありません。 / ※掲載情報の誤りや変更、未掲載情報の掲載依頼がございましたら、お手数ですが お問い合わせフォーム よりご連絡ください。

掲載物件数:2,349件  4,247区画

お気に入りに追加