
賃貸条件
| 所在階 | 2階 |
|---|---|
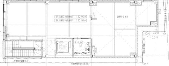
| 用途 | 店舗 |
| 面積 | 37.18坪 / 122.9m² |
| 賃料 | 1,041,134円 |
| 共益費 | 74,360円 |
| 坪単価 | 30,000円/坪(共益費込) |
| 預託金 | 6ヶ月 |
| 入居時期 | 2025年11月上旬 |
| その他費用 | 償却: 1ヶ月 礼金: 1ヶ月 |
| トイレ | 男女共用 |
| その他 | スケルトン/重飲食等業種ご相談 |
物件概要
| 所在地 | 東京都港区浜松町2丁目13末番未定 |
|---|---|
| 交通 |
|
| 規模 | 地上3階建て |
| 竣工 | 2025年11月 |
| 耐震基準 | 新耐震基準 |
| 構造 | 鉄骨(S造) |
物件詳細・設備
| エレベーター | 1基 |
|---|
※表⽰⾦額は、敷⾦・保証⾦などの預かり⾦を除き、別途消費税がかかります。 / ※間取図は現況を優先させていただきます。 / ※駐車場は建物設備としての有無のため、有の場合でも賃貸条件としての空きを保証するものではありません。 / ※掲載情報の誤りや変更、未掲載情報の掲載依頼がございましたら、お手数ですが お問い合わせフォームよりご連絡ください。
近隣の条件が近い物件
掲載物件数:2,447件
4,449区画


















