VORT浅草雷門(旧:A*G浅草) 9階

最終情報更新日:2025/12/11
ビルコード:1310600595
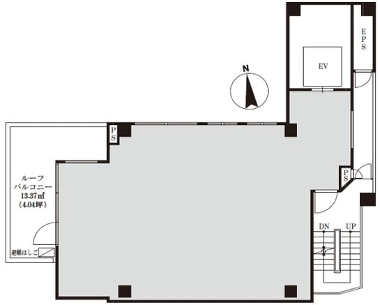
VORT浅草雷門(旧:A*G浅草) 9階 平面図

賃貸条件

所在階9階
用途店舗
面積21.98坪 / 72.66m²
賃料相談
共益費相談
坪単価-
預託金10ヶ月
入居時期即入居
その他費用償却: なし
礼金: なし
更新料・再契約料: 1ヶ月
天井高3,170mm
その他スケルトン/ダクト有、ガス引込有/重飲食相談可

物件概要

所在地東京都台東区浅草1丁目17-4
交通
  • 東京メトロ銀座線 浅草駅 3分
  • 都営浅草線 浅草橋駅 4分
  • 東武伊勢崎線 浅草駅 5分
  • つくばエクスプレス 浅草駅 6分
規模地上10階建て
竣工2025年1月
耐震基準新耐震基準
構造鉄骨(S造)

物件詳細・設備

エレベーター1基

VORT浅草雷門(旧:A*G浅草)の空室一覧

↓ 募集区画クリックで詳細情報をご覧いただけます

募集区画面積用途賃料+共益費坪単価(共益費込)入居時期平面図お気に入り
9階21.98坪店舗相談-即入居

※表⽰⾦額は、敷⾦・保証⾦などの預かり⾦を除き、別途消費税がかかります。 / ※間取図は現況を優先させていただきます。 / ※駐車場は建物設備としての有無のため、有の場合でも賃貸条件としての空きを保証するものではありません。 / ※掲載情報の誤りや変更、未掲載情報の掲載依頼がございましたら、お手数ですが お問い合わせフォームよりご連絡ください。

近隣の条件が近い物件

東京都台東区寿1丁目11-6

地上9階建て

19.34坪

都営大江戸線 蔵前駅 4分

東京都台東区西浅草3丁目24-5

地上13階建て

16.41坪

つくばエクスプレス 浅草駅 4分

東京都墨田区両国3丁目24-5

地上4階建て

23.03坪

JR中央・総武線 両国駅 1分

東京都台東区上野5丁目26-10

地上6階 / 地下2階

22.18坪

JR山手線 御徒町駅 1分

東京都台東区東上野3丁目37-6

地上7階建て

19.13坪

JR山手線 上野駅 3分

東京都台東区浅草橋2丁目29-11

地上10階 / 地下1階

24.6坪

JR中央・総武線 浅草橋駅 5分

東京都墨田区両国2丁目18-4

地上7階建て

23.22坪

JR中央・総武線 両国駅 2分

東京都台東区浅草1丁目27-2

地上10階建て

32.89坪

つくばエクスプレス 浅草駅 2分

東京都台東区小島2丁目14-5

地上8階建て

17.87坪

都営大江戸線 新御徒町駅 2分

東京都中央区東日本橋2丁目24-9

地上10階建て

22.53坪

総武線(快速) 馬喰町駅 2分

東京都台東区上野3丁目6-4

地上5階建て

21.98坪

東京メトロ銀座線 末広町駅 3分

東京都中央区日本橋馬喰町1丁目12-4

地上5階建て

23.26坪

総武線(快速) 馬喰町駅 1分

東京都墨田区緑2丁目21-10

地上5階建て

19.75坪

都営大江戸線 両国駅 7分

東京都千代田区外神田5丁目2-4

地上8階建て

21.36坪

東京メトロ銀座線 末広町駅 1分

東京都千代田区神田松永町10

地上8階建て

22.37坪

JR中央・総武線 秋葉原駅 1分

東京都千代田区岩本町3丁目8-11

地上8階建て

21.37坪

都営新宿線 岩本町駅 3分

東京都千代田区岩本町3丁目9-1

地上7階 / 地下1階

21.29坪

都営新宿線 岩本町駅 2分

東京都千代田区神田佐久間町3丁目37

地上6階 / 地下1階

20.0坪

東京メトロ日比谷線 秋葉原駅 4分

掲載物件数:2,441件  4,438区画

お気に入りに追加